
Lean.der Grundstücksentwicklungs- und Beteiligungsgesellschaft mbH
Herr Jonas Dawo
004 ···
Nr. anzeigenPreise & Kosten
Provision für Mieter
provisionsfrei
Warum sehe ich diese Anzeige? – Du siehst diese Anzeige basierend auf Ihrer Navigation auf unserer Website und den Suchkriterien, die du verwendet hast.
Lage
Die Büroeinheit befindet sich im Ortsteil Behringen der Gemeinde Hörselberg-Hainich, zentral im Ortskern gelegen. In unmittelbarer Nähe finden sich zahlreiche infrastrukturelle Einrichtungen des täglichen Bedarfs: eine Poststelle, Einkaufsmöglichkeiten sowie Gastronomieangebote.
Öffentliche Parkplätze stehen in...
Büro-/Praxisfläche
Kategorie
Bürofläche
Geschoss
1. Geschoss
Details
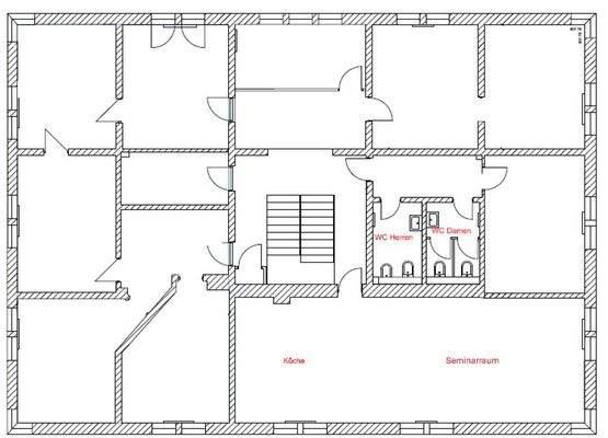
Objektbeschreibung
Wir bieten Ihnen eine vielseitig nutzbare Büroeinheit zur Vermietung - ideal für Unternehmen, Start-ups, Bildungsträger etc.
Das Objekt im Überblick:
Großer, heller Raum - optimal für Schulungen, Workshops oder Besprechungen
Moderne Küche - perfekt für jede Pause.
Flexibel anpassbare Büroflächen -...
Ausstattung
Die Räumlichkeiten wurden bereits als Büroeinheit genutzt und sind dementsprechend funktional ausgestattet. Es stehen ausreichend Strom- und EDV-Anschlüsse zur Verfügung, die durch vorhandene Kabelkanäle flexibel erweitert werden können - ideal für moderne Arbeitsplätze mit hohem technischem Anspruch.
Eine passende...
Weitere Informationen
Stichworte
Gesamtfläche: 112,00 m²
Anbieter der Immobilie
Lean.der Grundstücksentwicklungs- und Beteiligungsgesellschaft mbH
Hauptstraße 90 B, 99820 Behringen
Online-ID: 2khar52
Referenznummer: 51
Finde Angebote wie dieses
Hier geht es zu unserem Impressum, den Allgemeinen Geschäftsbedingungen, den Hinweisen zum Datenschutz und nutzungsbasierter Online-Werbung.