

Mehrfamilienhaus zum Kauf384000 €1.280 €/m²300 m² • 635 m² Grundstück • frei ab sofort
384000 €
1.280 €/m²
300 m² • 635 m² Grundstück • frei ab sofort
Saniertes Wohn- u. Geschäftshaus mit fachwerklich historischer Substanz, Weinkeller, Festscheune, Sonnenterrasse und Garten
Merkmale
- 3 Geschosse
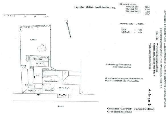
- 635 m² Grundstück
- Einbauküche, offene Küche
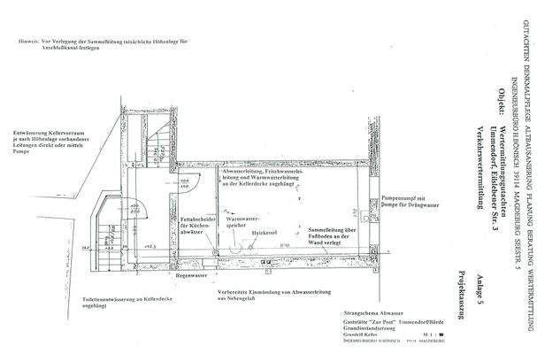
- Keller
- 2 Stellplätze: Garage
- Bad/WC getrennt, Gäste-WC
- Balkon
- Gartenanteil, Garten
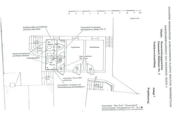
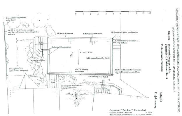
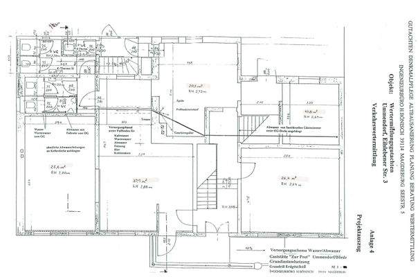
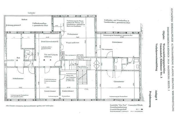
Grundrisse
Grundrisse
1 / 8
Realisiere Dein Projekt
Bausubstanz und Energie
Energieausweis
- Baujahr1855
- HeizungsartZentralheizung
- EnergieträgerGas, Solar
Preisdetails
Kaufpreis
384000 €
1.280 €/m²
Provision für Käufer
7,14 % vom Kaufpreis inkl. MwSt.
Geschätzte Gesamtkosten
424.589 €1
Kaufpreis
384.000 €
Kaufnebenkosten
40.589 €
2Notarkosten (1,5%)
5.760 €
Grunderwerbsteuer (5%)
19.200 €
Provision für Käufer (3,57%)
13.709 €
Grundbucheintrag (0,5%)
1.920 €
1Der angezeigte Wert ist eine automatisch berechnete Schätzung von immowelt.
2Bei den Angaben handelt es sich um ortsübliche Werte. Individuelle Kosten können abweichen.
Lage

Eilslebener Straße 3, Ummendorf (39365)
Weitere Informationen
Weitere Services
Lust auf eine Besichtigung?
Eine Frage zur Immobilie?
Über den Anbieter
Immobilienmaklerin Stephanie SabrowskiMaklerbüro
Bernburger Str. 10, 39240 Calbe (Saale)
Partnerschaft

Frau Stephanie SabrowskiDein Kontakt
Weitere Unterlagen
Online-ID: 2khe85w

Immobilienmaklerin Stephanie Sabrowski
Bewertung: 5 von 5 Sternen
Wie zufrieden bist du mit dieser Seite (nicht mit der Immobilie selbst)?

