

Einfamilienhaus zum Kauf639000 €3.260 €/m²6 Zimmer • 196 m² • 866 m² Grundstück
639000 €
3.260 €/m²
6 Zimmer • 196 m² • 866 m² Grundstück
GUTE WOHNLAGE INKLUSIVE ..... Architektenhaus mit Einliegerwohnung/Büro
Merkmale
- Bezug: nach Vereinbarung
- vermietet
- 866 m² Grundstück
- Keller
- Garage
- Gäste-WC
- Garten
- Terrasse
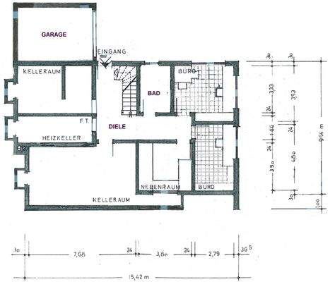
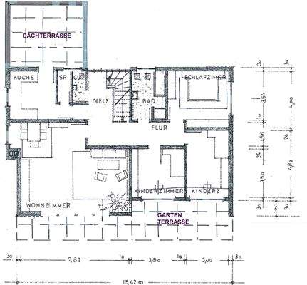
Grundrisse
Grundrisse
1 / 2
Realisiere Dein Projekt
Bausubstanz und Energie
Energieausweis
H
- Baujahr1963
- Zustand der ImmobilieMassivhaus
- HeizungsartZentralheizung
- EnergieträgerÖl
Preisdetails
Kaufpreis
639000 €
3.260,20 €/m²
Provision für Käufer
Bitte beachte, das Angebot beinhaltet bei Vertragsabschluss die Zahlung einer Provision. Weitere Informationen erhältst Du vom Anbieter.
Geschätzte Gesamtkosten
696.957 €1
Kaufpreis
639.000 €
Kaufnebenkosten
57.957 €
2Notarkosten (1,5%)
9.585 €
Grunderwerbsteuer (3,5%)
22.365 €
Provision für Käufer (3,57%)
22.812 €
Grundbucheintrag (0,5%)
3.195 €
1Der angezeigte Wert ist eine automatisch berechnete Schätzung von immowelt.
2Bei den Angaben handelt es sich um ortsübliche Werte. Individuelle Kosten können abweichen.
Lage

Heuchling, Lauf an der Pegnitz (91207)
Der Anbieter hat die genaue Adresse nicht freigegeben
Weitere Informationen
Weitere Services
Lust auf eine Besichtigung?
Eine Frage zur Immobilie?
Über den Anbieter
Daniel Naubert Classic ImmobilienMaklerbüro
Hallertorstr. 9 a, 92318 Neumarkt
Partnerschaft
Herr Fritz DexlDein Kontakt
Online-ID: 2khk75h

Daniel Naubert Classic Immobilien
Bewertung: 4,7 von 5 Sternen
Wie zufrieden bist du mit dieser Seite (nicht mit der Immobilie selbst)?

