

Robert C. Spies Immobilien GmbH & Co. KG Bremen
Herr Benedikt Liedtke
+49 ···
Nr. anzeigenPreise & Kosten
Provision für Käufer
5,95 % inkl. MwSt. vom Kaufpreis
Provisionspflichtig für den Käufer! Unsere Objektangaben basieren auf den uns erteilten Informationen. Eine Haftung für die Richtigkeit und Vollständigkeit können wir deshalb nicht übernehmen.
Lage
Das Mehrfamilienhaus befindet sich in einer der begehrtesten Wohnlagen Bremens, im Stadtteil Schwachhausen. Die Umgebung zeichnet sich durch eine gehobene Wohnqualität mit stilvollen Altbremer Häusern, grünen Alleen und einer ruhigen, dennoch zentralen Lage aus.
Einkaufsmöglichkeiten sind fußläufig erreichbar, darunter...
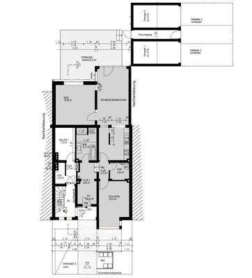
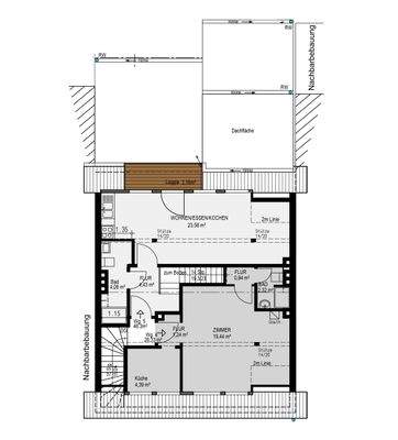
Das Renditeobjekt
Kategorie
Mehrfamilienhaus
Baujahr
1955
Energie & Heizung
Warum sehe ich diese Anzeige? – Du siehst diese Anzeige basierend auf Ihrer Navigation auf unserer Website und den Suchkriterien, die du verwendet hast.
Energieausweistyp
Bedarfsausweis
Gebäudetyp
Wohngebäude
Wesentliche Energieträger
Gas
Gültigkeit
02.01.2017 bis 01.01.2027
Effizienzklasse
D
Endenergiebedarf
129,00 kWh/(m²·a)
Weitere Energiedaten
Heizungsart
Zentralheizung
Details
Ausstattung
Dieses attraktive Mehrfamilienhaus aus dem Baujahr 1955 wurde im Jahr 2014 umfassend und hochwertig kernsaniert und präsentiert sich in einem erstklassigen Zustand. Mit einer Gesamtwohnfläche von ca. 373 m², verteilt auf fünf moderne Wohneinheiten, bietet die Immobilie eine solide Kapitalanlage in begehrter...
Preisinformation
2 Garagenstellplätze
Nettokaltmiete: 57.120,00 EUR
Ist-Mieteinnahmen pro Jahr: 57.120,00 EUR
Weitere Informationen
Sonstiges
Für weitere Details zu diesem Investment stehen wir Ihnen gern in einem persönlichen Telefonat oder im Rahmen einer Besichtigung zur Verfügung.
Anbieter der Immobilie

Online-ID: 2khsx5q
Referenznummer: 32623/1
Finde Angebote wie dieses
Hier geht es zu unserem Impressum, den Allgemeinen Geschäftsbedingungen, den Hinweisen zum Datenschutz und nutzungsbasierter Online-Werbung.