

Management Immobilien Heinemann e.K.
Herr Marco Yunus
015 ···
Nr. anzeigenPreise & Kosten
Provision für Käufer
2,5% inkl. 19% gesetzl.MwSt.
Lage
Das angebotene Wohn- und Geschäftshaus liegt zentral und dennoch sehr idyllisch in der Ortschaft Ihlienworth im Landkreis Cuxhaven. Im Ort befinden sich ein Kindergarten, eine Grundschule, ein Bäcker sowie ein 24/7 Lebensmittelmarkt.
Auch verschiedene Vereine sowie eine Reitanlage sind im Ort ansässig. Einmal wöchentlich...
Das Haus
Kategorie
Einfamilienhaus
Baujahr
1900
Bezug
Nach Absprache
Energie & Heizung
Warum sehe ich diese Anzeige? – Du siehst diese Anzeige basierend auf Ihrer Navigation auf unserer Website und den Suchkriterien, die du verwendet hast.
Energieausweistyp
Bedarfsausweis
Gebäudetyp
Wohngebäude
Wesentliche Energieträger
Gas
Gültigkeit
27.04.2023 bis 26.04.2033
Effizienzklasse
D
Endenergiebedarf
129,80 kWh/(m²·a)
Weitere Energiedaten
Energieträger
Gas
Heizungsart
offener Kamin, Zentralheizung
Details
Objektbeschreibung
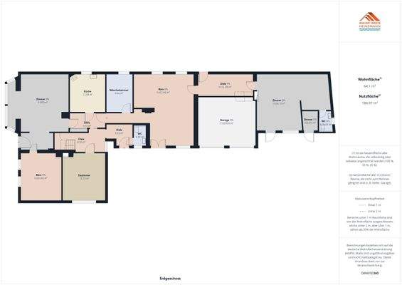
Dieses attraktive Wohnhaus bietet auf insgesamt 180 m² Wohnfläche und 250 m² Nutzfläche viel Raum für individuelle Gestaltung und Nutzung. Die Immobilie verfügt über 5 Zimmer (Wohnen) sowie 4 Räumlichkeiten (Gewerbe). Das Objekt eignet sich ideal für eine Familie oder eine Kombination aus Wohnen und Arbeiten.
Die...
Ausstattung
Kellergeschoss:
- 1 Raum (8m²)
Erdgeschoss Gewerbe:
- Empfangsbereich
- Büro
- weiterer großer Raum
- große Diele als Lagermöglichkeit
- Werkstatt mit WC
Erdgeschoss Wohnen:
- Küche
- Esszimmer
- Gäste WC
- sep. Diele mit Treppenaufgang ins DG
Dachgeschoss...
Preisinformation
4 Stellplätze
Weitere Informationen
Sonstiges
Möchten Sie Ihre eigenen Ideen und Eindrücke zu diesem Haus sammeln? Dann vereinbaren Sie jetzt Ihren privaten Kennenlerntermin! KH Management Immobilien Heinemann - Marco Yunus Tel. 0152/38001660
Alle Daten in diesem Exposé beruhen auf Angaben des Verkäufers. Die Objektangaben wurden mit großer Sorgfalt...
Anbieter der Immobilie

Online-ID: 2khta5m
Referenznummer: MIH - 212
Finde Angebote wie dieses
Hier geht es zu unserem Impressum, den Allgemeinen Geschäftsbedingungen, den Hinweisen zum Datenschutz und nutzungsbasierter Online-Werbung.