
Immobilienmaklerin Stephanie Sabrowski
Frau Stephanie Sabrowski
015 ···
Nr. anzeigenPreise & Kosten
Provision für Käufer
6 % vom Kaufpreis zzgl. MwSt.
Abschreibung/Anlage
Denkmalschutz-Afa, als Kapitalanlage geeignet
Lage
Makrolage
Im westlichen Sachsen-Anhalt befindet sich die Ortschaft Ummendorf in ländlicher Region, ca. 17 Kilometer vor den Toren der niedersächsischen Stadt Helmstedt. Inmitten der Magdeburger Börde liegt die Gemeinde Ummendorf, die der Verbandgemeinde Obere Aller zugehörig ist. Aufgrund der Lage in einer sehr bedeutenden...
Gastronomie/Hotel
Baujahr
1855
Derzeitige Nutzung
frei
Sitzplätze
120
Geschosse
3 Geschosse
Energie & Heizung
Warum sehe ich diese Anzeige? – Du siehst diese Anzeige basierend auf Ihrer Navigation auf unserer Website und den Suchkriterien, die du verwendet hast.
Energieausweis: für diesen Gebäudetyp nicht notwendig
Weitere Energiedaten
Energieträger
Gas, Solar
Heizungsart
Zentralheizung
Details
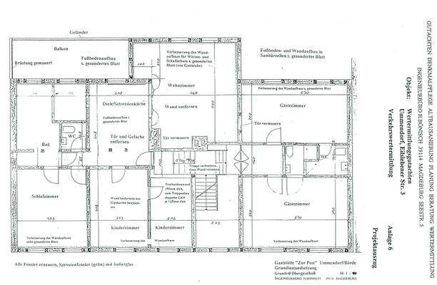
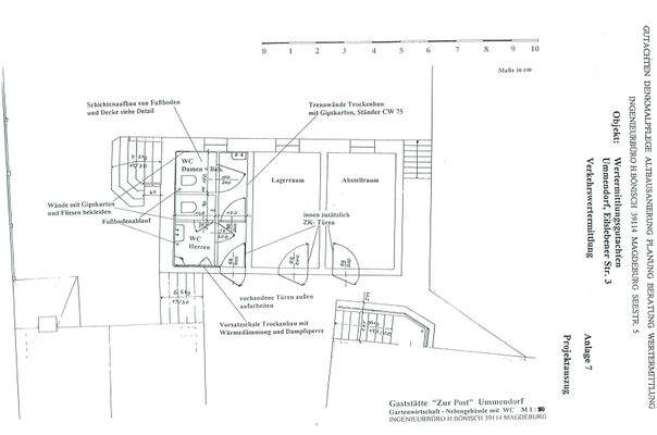
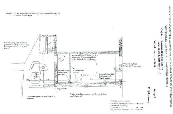
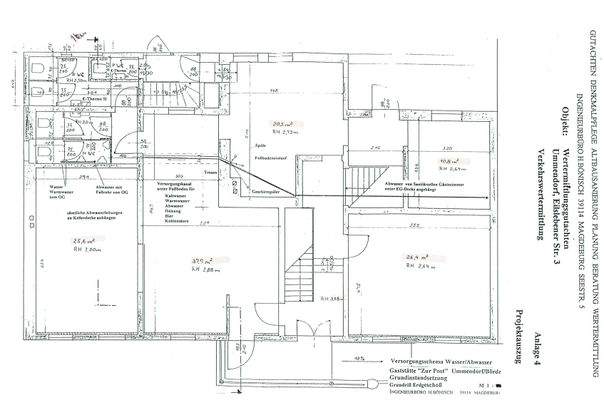
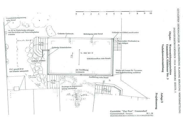
Objektbeschreibung
Bei dem Verkaufsobjekt handelt es sich um ein ca. 1855 erbautes sowie denkmalgeschütztes Fachwerkhaus mit solider Bausubstanz, welches zwischen 1998 und 2000 nach damalig gültigen öffentlich-rechtlichen Vorschriften umfassend saniert wurde. Durch die grundhafte Sanierung zur Verbesserung der Nutzungseigenschaften und des...
Weitere Informationen
Basisinformationen
- 1998 Kernsanierung Fachwerkhaus
- 2022 Dachneueindeckung
- Gasthof mit 2 Pensionszimmer (optional kann eine weitere separate Pensionswirtschaft mit 5 Gästezimmern/Bädern erworben werden)
- moderne Einliegerwohnung mit Balkon, 4Raum mit Einbauküche, Bad u. Gäste-WC
- Gaststube (brauereifrei)...
Dokumente
Anbieter der Immobilie
Immobilienmaklerin Stephanie Sabrowski
Bernburger Str. 10, 39240 Calbe (Saale)

Online-ID: 2khw45w
Finde Angebote wie dieses
Hier geht es zu unserem Impressum, den Allgemeinen Geschäftsbedingungen, den Hinweisen zum Datenschutz und nutzungsbasierter Online-Werbung.