

Classic Immobilien
Herr Christoph Bürsing
040 ···
Nr. anzeigenPreise & Kosten
Provision für Käufer
3,57 % Courtage inkl. MwSt. auf den Kaufpreis inkl. MwSt.
Lage
Das Grundstück befindet sich im Hamburger Stadtteil Schnelsen, einem ruhigen Wohngebiet. Die Umgebung ist geprägt von Einfamilienhäusern und viel Grün. In unmittelbarer Nähe liegt der Wassermannpark, der sich ideal für Spaziergänge und sportliche Aktivitäten eignet. Die Verkehrsanbindung ist durch die nahegelegene...
Das Haus
Kategorie
Einfamilienhaus
Baujahr
2000
Bezug
nach Vereinbarung
Energie & Heizung
Warum sehe ich diese Anzeige? – Du siehst diese Anzeige basierend auf Ihrer Navigation auf unserer Website und den Suchkriterien, die du verwendet hast.
Energieausweistyp
Bedarfsausweis
Gebäudetyp
Wohngebäude
Baujahr laut Energieausweis
1999
Wesentliche Energieträger
GAS
Gültigkeit
bis 19.02.2035
Effizienzklasse
E
Endenergiebedarf
142,80 kWh/(m²·a)
Weitere Energiedaten
Energieträger
Gas
Heizungsart
Fußbodenheizung
Details
Objektbeschreibung
Die eindrucksvolle Unternehmervilla ist 2000 vom renomierten Bauträger S&T Landhaus in konventioneller Bauweise "Stein auf Stein" erstellt worden. Insgesamt stehen ca. 172 m² Wohnfläche im Erd- und Obergeschoss sowie ca. 100 m² wohnliche Nutzfläche im Souterrain zur Verfügung.
Durch Deckenhöhen von ca. 3 Metern im...
Ausstattung
Die Ausstattung des Hauses ist äußerst gepflegt und genügt höchsten Ansprüchen. Folgende Details möchten wir hervorheben:
- Offene Einbauküche mit Granit-Arbeitsplatte
- Großzügiger Wohn- und Essbereich mit zwei Glaserkern
- Offener Marmor-Kamin (Importiert aus einem herrschaftlichen Landsitz der Bretagne)
-...
Preisinformation
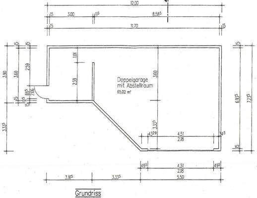
3 Garagenstellplätze
Weitere Informationen
Stichworte
Nutzfläche: 100,00 m², Anzahl der Schlafzimmer: 4, Anzahl der Badezimmer: 2, Anzahl der separaten WCs: 1
Anbieter der Immobilie

Online-ID: 2kjam5e
Referenznummer: 915
Finde Angebote wie dieses
Hier geht es zu unserem Impressum, den Allgemeinen Geschäftsbedingungen, den Hinweisen zum Datenschutz und nutzungsbasierter Online-Werbung.