

im Netzwerk von QUINZZ.
Frau Michelle Nießen
017 ···
Nr. anzeigenPreise & Kosten
Provision für Käufer
3,00 % auf den Kaufpreis inkl. MwSt
Die Provision für den Käufer in Höhe von 3,00 % auf den Kaufpreis inkl. MwSt. ist bei notariellem Vertragsabschluss fällig und vom Käufer an die QUINZZ. GmbH zu zahlen.
Lage
Das Objekt liegt in einem ruhigen Wohngebiet von Leverkusen-Manfort, geprägt von gewachsener Nachbarschaft und guter Infrastruktur. Mehrere Bushaltestellen befinden sich in fußläufiger Entfernung, der Regionalbahnhof Leverkusen-Manfort ist schnell erreichbar. Von hier bestehen direkte Anbindungen nach Köln, Düsseldorf und ins...
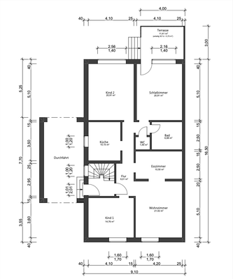
Die Wohnung
Wohnungslage
Erdgeschoss
Derzeitige Nutzung
vermietet
Wohnanlage
Energie & Heizung
Warum sehe ich diese Anzeige? – Du siehst diese Anzeige basierend auf Ihrer Navigation auf unserer Website und den Suchkriterien, die du verwendet hast.
Energieausweistyp
Bedarfsausweis
Gebäudetyp
Wohngebäude
Wesentliche Energieträger
Gas
Gültigkeit
23.08.2022 bis 22.08.2032
Effizienzklasse
B
Endenergiebedarf
74,10 kWh/(m²·a)
Weitere Energiedaten
Energieträger
Gas
Heizungsart
offener Kamin, Zentralheizung
Details
Objektbeschreibung
Willkommen in Ihrem neuen Zuhause! Diese großzügige 5-Zimmer-Wohnung im Erdgeschoss bietet mit ca. 122?m² Wohnfläche reichlich Raum für Familien oder anspruchsvolle Paare. Ein besonderes Highlight ist der private Garten mit angrenzender Terrasse - perfekt für entspannte Stunden im Freien, Grillabende oder als sichere...
Preisinformation
2 Stellplätze, Kaufpreis je: 10.000,00 EUR
Weitere Informationen
Stichworte
Garage vorhanden, Stellplatz vorhanden, Anzahl der Schlafzimmer: 3, Anzahl der Badezimmer: 1, Anzahl Balkone: 1, Bundesland: Nordrhein-Westfalen, modernisiert: 2022
Anbieter der Immobilie
im Netzwerk von QUINZZ.
Am Mühlenteich 2, 21465 Wentorf bei Hamburg

Online-ID: 2kje55r
Referenznummer: 1261-MN
Finde Angebote wie dieses
Hier geht es zu unserem Impressum, den Allgemeinen Geschäftsbedingungen, den Hinweisen zum Datenschutz und nutzungsbasierter Online-Werbung.