
Immobilienhaus Wagner GmbH
Herr Eric Lucyga
015 ···
Nr. anzeigenPreise & Kosten
Provision für Käufer
3,57 % inkl. gesetzlicher MwSt.
Die Angaben zum Objekt stammen vom Verkäufer. Für die Richtigkeit und Vollständigkeit wird keine Haftung übernommen. Weitere Informationen siehe Provisionshinweis.
Lage
Die norddeutsche Hansestadt zieht sich etwa 20 km am Lauf der Warnow bis zur Mündung an der Ostsee entlang. Die Hansestadt hat heute etwa 210.000 Einwohner und ist nach Einwohnerzahl und Fläche die größte Stadt des Landes Mecklenburg-Vorpommern. Schifffahrt und Hafen, Schiffbau und Fischfang bestimmen das wirtschaftliche...
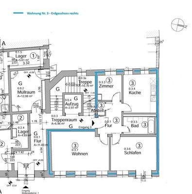
Die Wohnung
Wohnungslage
Erdgeschoss
Bezug
sofort
Wohnanlage
Energie & Heizung
Warum sehe ich diese Anzeige? – Du siehst diese Anzeige basierend auf Ihrer Navigation auf unserer Website und den Suchkriterien, die du verwendet hast.
Energieausweistyp
Verbrauchsausweis
Gebäudetyp
Wohngebäude
Wesentliche Energieträger
Fernwärme
Gültigkeit
01.11.2022 bis 01.11.2032
Effizienzklasse
D
Endenergieverbrauch
106,00 kWh/(m²·a) - Warmwasser enthalten
Weitere Energiedaten
Energieträger
Fernwärme
Details
Objektbeschreibung
Inmitten der Östlichen Altstadt - einem der historisch bedeutendsten und gleichzeitig begehrtesten Wohnviertel Rostocks - präsentieren wir Ihnen diese sofort bezugsfreie 3-Zimmer-Wohnung im Erdgeschoss eines denkmalgerecht sanierten Altbauensembles. Die unmittelbare Nähe zur Kröpeliner Straße, dem Stadthafen sowie zahlreichen...
Ausstattung
- Gepflegter Allgemeinzustand
- 716 / 10.000-stel Miteigentumsanteil
- 3 Zimmer, Küche, Abstellraum
- Fußbodenarten: Vinyl-Designbelag, Fliesen in Bad/Küche
- Küche ohne Einbauküche
- Badezimmer mit Badewanne
- 2007 / 2008 Neuaufbau der Hausinnenbereiche
- 2025 Aufteilung der Immobilie nach Wohn- und...
Weitere Informationen
Provisionshinweis
3,57 % inkl. gesetzlicher MwSt.
Die Angaben zum Objekt stammen vom Verkäufer. Für die Richtigkeit und Vollständigkeit wird keine Haftung übernommen. Der Käufer sowie der Verkäufer zahlen im Erfolgsfall an die Firma Immobilienhaus Wagner GmbH jeweils eine Maklerprovision in Höhe von 3,57 % inkl...
Anbieter der Immobilie
Online-ID: 2kjhu5u
Referenznummer: 2663
Finde Angebote wie dieses
Hier geht es zu unserem Impressum, den Allgemeinen Geschäftsbedingungen, den Hinweisen zum Datenschutz und nutzungsbasierter Online-Werbung.