
Hähnlein & Krönert Immobilienmakler GmbH
061 ···
Nr. anzeigenDieses Angebot ist Teil des Neubauprojekts
Moderne Eigentumswohnungen in Plagwitz
Preise & Kosten
Provision für Käufer
provisionsfrei
Lage
Plagwitz liegt ungefähr 3 Kilometer westlich des Stadtzentrums und ist von dort in kurzer Zeit erreichbar. Der Stadtteil überzeugt mit einer sehr gut ausgebildeten Infrastruktur. Mit der Bushaltestelle nur 100 m entfernt, sind Sie sowohl mit öffentlichen Verkehrsmitteln als auch mit dem Auto gut angebunden. Kindergarten...
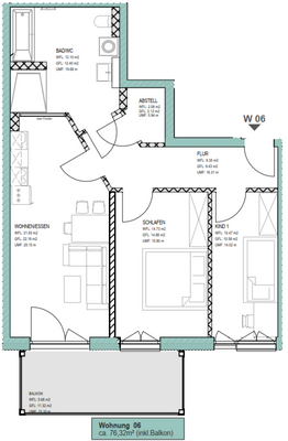
Die Wohnung
Wohnanlage
Das Neubauprojekt
Details
Objektbeschreibung
Im hippen Szeneviertel Plagwitz, am Rande von Kleinzschocher gelegen, entstehen 9 Eigentumswohnungen mit Wohnflächen von 47-111 m², die ihresgleichen suchen werden.
Die beiden unterschiedlich hohen Gebäudeteile des geplanten Mehrfamilienhauses bilden durch die einheitliche Fassadengestaltung einen klar ablesbaren...
Ausstattung
- energieeffiziente Luft-Wasser-Wärmepumpe
- Photovoltaik-Anlage für Allgemeinstrom und Wärmepumpe
- Aufzug von der Tiefgarage bis in Ihre Etage
- barrierearm, teilw. barrierefrei
- alle Wohnungen mit Balkon oder Terrasse (teilw. Gartenanteil)
- Fußbodenheizung
- Designboden, moderne Fliesen
- teilw...
Preisinformation
429.800,00
Alle Preise sind inkl. MWST., 1 Tiefgaragenstellplatz, Kaufpreis: 26.800,00 EUR
Weitere Informationen
Sonstiges
- und das alles gibt es für Sie käuferprovisionsfrei!
Rufen Sie jetzt an - wir informieren Sie gern! 06192/ 20 68 20
www.plagwitz9.de
Die endgültigen Energiedaten liegen erst nach Fertigstellung vor.
Kennzeichen
Balkon, elektrische Rollläden, Erstbezug, Neubau, Personenaufzug...
Anbieter der Immobilie

Hähnlein & Krönert Immobilienmakler GmbH
Online-ID: 2kjn35f
Referenznummer: 297/06
Finde Angebote wie dieses
Hier geht es zu unserem Impressum, den Allgemeinen Geschäftsbedingungen, den Hinweisen zum Datenschutz und nutzungsbasierter Online-Werbung.