

BUERO.IMMOBILIEN Leipzig GmbH & Co. KG
Frau Kathrin Oldenburg
034 ···
Nr. anzeigenPreise & Kosten
Provision für Mieter
provisionsfrei
Warum sehe ich diese Anzeige? – Du siehst diese Anzeige basierend auf Ihrer Navigation auf unserer Website und den Suchkriterien, die du verwendet hast.
Lage
Die angebotene Büroeinheit befindet sich im angesagten Stadtteil Plagwitz in Leipzig, einem Zentrum für Kreativität und Innovation. Plagwitz zeichnet sich durch seine Mischung aus industriellem Charme und moderner Urbanität aus. Die Nähe zu kulturellen Einrichtungen, Cafés und Start-ups macht diesen Standort besonders...
Büro-/Praxisfläche
Kategorie
Bürofläche
Details
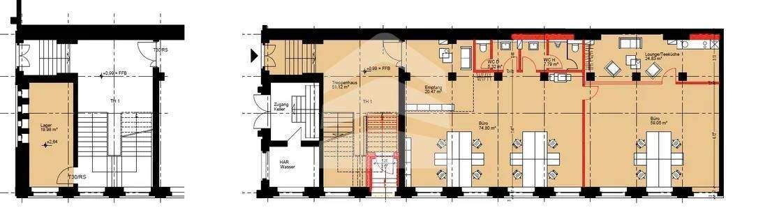
Objektbeschreibung
Die loftartigen Flächen in diesem 2 geschossigen Industriegebäude auf dem Gelände des Toom Baumarktes sind bereits ausgebaut und können nach Ihrem persönlichen Anforderungsprofil aus- und umgestaltet werden. Sämtliche relevanten Leitungen für Telefon, Netzwerk und Strom werden nach Ihren Wünschen realisiert und nach dem zu...
Weitere Informationen
Sonstiges
Der Mietpreis richtet sich nach Ausstattung, Mietvertragslaufzeit und Lage im Objekt und liegt
ca. zwischen 12,80 und 14,80 EUR/m² zzgl. Nebenkosten. Gern unterbreiten wir Ihnen Ihr persönliches Mietangebot.
BUEROanmietung leicht gemacht?
Bitte sprechen Sie uns an, gern stellen wir Ihnen eine...
Anbieter der Immobilie
BUERO.IMMOBILIEN Leipzig GmbH & Co. KG
Markt 9, 04109 Leipzig

Online-ID: 2kk3h55
Referenznummer: 996/E2/Eh3
Finde Angebote wie dieses
Hier geht es zu unserem Impressum, den Allgemeinen Geschäftsbedingungen, den Hinweisen zum Datenschutz und nutzungsbasierter Online-Werbung.