
Grundstein Invest Immobilien
Herr Tolga Sahinoglu
004 ···
Nr. anzeigenPreise & Kosten
Provision für Käufer
3,57%
Lage
Düsseldorf ist die Landeshauptstadt von Nordrhein-Westfalen und bekannt für ihre moderne Architektur, kulturellen Angebote und wirtschaftliche Bedeutung.
Die Rossstraße in Düsseldorf liegt in einem zentralen und gut erreichbaren Stadtteil, in der Nähe des Stadtzentrums, was eine gute Anbindung an öffentliche...
Die Wohnung
Wohnanlage
Energie & Heizung
Warum sehe ich diese Anzeige? – Du siehst diese Anzeige basierend auf Ihrer Navigation auf unserer Website und den Suchkriterien, die du verwendet hast.
Energieausweistyp
Bedarfsausweis
Gebäudetyp
Wohngebäude
Baujahr laut Energieausweis
1992
Wesentliche Energieträger
OEL
Gültigkeit
bis 22.01.2033
Effizienzklasse
F
Endenergiebedarf
185,00 kWh/(m²·a)
Weitere Energiedaten
Energieträger
Öl
Heizungsart
Etagenheizung
Details
Objektbeschreibung
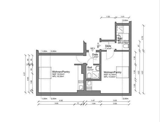
Zum Verkauf stehen zwei Eigentumswohnungen in der 6. Etage eines gepflegten, im Jahr 1971 erbauten Mehrfamilienhauses, welche im Paket angeboten werden. Die Wohnungen sind bequem über einen Aufzug im Haus erreichbar.
Wohnung 1 verfügt über eine Wohnfläche von ca. 18,29 qm und verteilt sich auf eine kleine Diele, ein...
Ausstattung
- Zwei nebeneinanderliegende Apartments
- Apartment 1: ca. 18,29 qm
- Apartment 2: ca. 20,45qm
- hochwertiger Vinylboden
- große Velux Dachfenster (Doppelverglast, Holz)
- Badezimmer mit Dusche und Fenster
- Warmwasseraufbereitung via Durchlauferhitzer
- Ölheizung aus 1992
- eine Wohnung verfügt über...
Weitere Informationen
Sonstiges
HINWEIS: Alle Angaben nach bestem Wissen. Irrtum und Zwischenverkauf vorbehalten.
Der Käufer zahlt im Erfolgsfall an die Firma Haus Grund Invest GmbH eine
Käufer-Maklerprovision in Höhe von 4,76% inkl. gesetzlicher MwSt. Die Provision errechnet sich aus dem beurkundeten Kaufpreis. Dieses Exposé ist eine...
Anbieter der Immobilie
Grundstein Invest Immobilien
Oststr. 43, 40667 Meerbusch
Online-ID: 2kk3t5n
Referenznummer: GI-70
Finde Angebote wie dieses
Hier geht es zu unserem Impressum, den Allgemeinen Geschäftsbedingungen, den Hinweisen zum Datenschutz und nutzungsbasierter Online-Werbung.