

SC Immobilien GmbH
Frau Ceylan Cete
043 ···
Nr. anzeigenPreise & Kosten
Provision für Käufer
4,76% inkl. Mwst.
Lage
Das geplante Hotel befindet sich mittig zwischen dem Hauptbahnhof Neumünster und der innen Stadt Neumünster. Jeweils 150 m vom Bahnhof und 150 m von der Innenstadt.
Die Immobilie
Zu diesem Angebot wurden vom Anbieter keine weiteren Daten hinterlegt. Für weitere Informationen bitte den Anbieter kontaktieren.
Nach Informationen fragenDetails
Objektbeschreibung
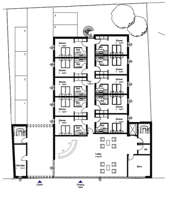
Das HOTEL Neubauprojekt umfasst 61 Zimmer und einem großzügigen Lobbyraum.
auf dem 1.020,00 m² großen Grundstück. Es ist vollständig Projektiert und Baugenehmigt und bereit zum Umsetzen.
- 61 Zimmer und ca. 1.977 m² Nutzfläche
- 2 Treppenhäuser
- 1 Aufzug
- 6 Außenstellplätze für PKW
- Keine...
Anbieter der Immobilie
SC Immobilien GmbH
Hamburger Str. 17, 24568 Kaltenkirchen

Online-ID: 2kkaa5s
Finde Angebote wie dieses
Hier geht es zu unserem Impressum, den Allgemeinen Geschäftsbedingungen, den Hinweisen zum Datenschutz und nutzungsbasierter Online-Werbung.