
Marko Künne Immobilien
034 ···
Nr. anzeigenPreise & Kosten
Provision für Käufer
provisionsfrei
Lage
Der Leipziger Stadtteil Stötteritz liegt etwa 4 km südöstlich vom Stadtzentrum. Stötteritz ist ein Stadtviertel in Leipzig, das sich weniger großstädtisch zeigt, sondern eher von kleinstädtischen oder sogar dörflichen Strukturen gekennzeichnet ist. Es wird durch die Innenstadt mit der Tramlinie 4 verbunden.
Das...
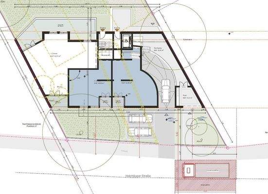
Das Grundstück
Details
Objektbeschreibung
Bei diesem Verkaufsangebot handelt es sich um ein ca. 1030 m² großes Grundstück, welches derzeit mit 12 Garagen bebaut ist. Das Grundstück ist im Flächennutzungsplan als Wohnbaufläche ausgewiesen. Es liegt im Innenbereich nach § 34 BauGB.
Für das Flurstück liegt eine Baugenehmigung vor, welche die Errichtung eines...
Preisinformation
10 Garagenstellplätze
Weitere Informationen
Stichworte
Garage vorhanden, Stellplatz vorhanden, Bundesland: Sachsen
Anbieter der Immobilie
Online-ID: 2kkfx5f
Referenznummer: 586745
Finde Angebote wie dieses
Hier geht es zu unserem Impressum, den Allgemeinen Geschäftsbedingungen, den Hinweisen zum Datenschutz und nutzungsbasierter Online-Werbung.