
GRK-ImmoWert GmbH
Frau Johanna Heidel
034 ···
Nr. anzeigenPreise & Kosten
Provision für Käufer
3,570 % inkl. ges. MwSt.
Abschreibung/Anlage
als Kapitalanlage geeignet
Lage
Das Gebäude befindet sich in Mockau, nördlich des Leipziger Stadtzentrums. Nördlich des Stadtteils befinden sich die Neue Messe und das BMW-Werk. Durch die Nähe zur A 14 gelangt man in wenigen Minuten zum Flughafen Leipzig/ Halle und DHL. In der Nähe befinden sich u.a. ein Badesee, das Freibad Sommerfeld, ein Kletterwald und...
Die Wohnung
Wohnungslage
Erdgeschoss
Bezug
2010
Derzeitige Nutzung
vermietet
Wohnanlage
Energie & Heizung
Warum sehe ich diese Anzeige? – Du siehst diese Anzeige basierend auf Ihrer Navigation auf unserer Website und den Suchkriterien, die du verwendet hast.
Energieausweis: für diesen Gebäudetyp nicht notwendig
Weitere Energiedaten
Energieträger
Gas
Heizungsart
Zentralheizung
Details
Objektbeschreibung
Das Haus gehört zu den sogenannten "Hoffmans Gärten". Eine charmante Wohnanlage, welche ca. im Jahre 1954 errichtet und im Jahre 2009 stilvoll saniert wurde. Das Objekt, in welchem sich die Wohnung befindet, verfügt über insgesamt 6 Wohneinheiten mit 3 Volletagen sowie ein ausgebautes Dachgeschoss. Liebevoll angelegte...
Ausstattung
Wir bieten Ihnen eine attraktive und familienfreundliche 4-Raum-Wohnung zum Kauf !
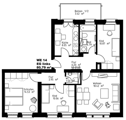
Die Wohnung befindet sich im Erdgeschoss des Hauses und verfügt über eine Wohnfläche von ca. 80,79 m². Ausgehend vom zentralen Flur erschließt sich der Zugang zu jedem Raum. Über die Küche gelangt man zudem auf den sonnigen Balkon. Dieser...
Weitere Informationen
sonstige Angaben
Courtagepassus
Der Maklervertrag mit der GRK-ImmoWert GmbH kommt durch die Bestätigung der Inanspruchnahme unserer Maklertätigkeit in Textform zustande. Die Höhe der Courtage richtet sich nach den ab dem 23.12.2020 in Kraft getretenen gesetzlichen Regelungen. Demnach beträgt die Courtage für beide...
Anbieter der Immobilie
GRK-ImmoWert GmbH
Wächterstraße 15, 04107 Leipzig
Online-ID: 2kkhz5y
Finde Angebote wie dieses
Hier geht es zu unserem Impressum, den Allgemeinen Geschäftsbedingungen, den Hinweisen zum Datenschutz und nutzungsbasierter Online-Werbung.