

Markus Frey Immobilien
Herr Markus Frey
+49 ···
Nr. anzeigenPreise & Kosten
Provision für Käufer
3,57% inkl. MwSt.
Lage
Entdecken Sie Ihre hochwertige Kapitalanlage in dieser ruhigen Wohnlage mitten im Herzen des begehrten Herrenfelds! Ein Teil dieser Straße ist sogar ein Privatweg der angrenzenden Hauseigentümer, was Ihren Mietern ein Höchstmaß an Privatsphäre und Geborgenheit garantiert. Die Lebendigkeit des Marktplatzes mit seinen...
Das Renditeobjekt
Kategorie
Wohnanlage
Baujahr
1964
Bezug
Bezugsfrei
Energie & Heizung
Warum sehe ich diese Anzeige? – Du siehst diese Anzeige basierend auf Ihrer Navigation auf unserer Website und den Suchkriterien, die du verwendet hast.
Energieausweistyp
Bedarfsausweis
Gebäudetyp
Wohngebäude
Baujahr laut Energieausweis
1964
Wesentliche Energieträger
Gas
Gültigkeit
20.09.2024 bis 19.09.2034
Effizienzklasse
G
Endenergiebedarf
248,60 kWh/(m²·a)
Weitere Energiedaten
Energieträger
Gas
Heizungsart
Zentralheizung
Details
Objektbeschreibung
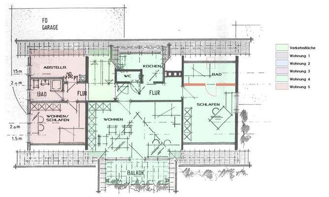
Dieses großzügige Wohnhaus wurde ursprünglich 1964 als Zweifamilienhaus mit einer Wohn- und Nutzfläche von ca. 200 m² errichtet. Im Jahr 1992 erfolgte eine Erweiterung, bei der zusätzliche ca. 168 m² Wohnfläche geschaffen wurden. Im Rahmen dieser Baumaßnahmen erhielt der Anbau eine Gasheizung, die Isolierung des Altbaus wurde...
Ausstattung
Ausstattung der Wohnung:
-Parkett- und Fliesenböden
-Wände mit Raufaser oder Putz, hell gestrichen
-3 Tageslichtbäder mit Dusche und teilweise Badewanne
-2 Balkone und 1 Terrasse
-Großzügiger Garten mit altem Baumbestand
-Einbauküche inklusive
-Highspeed-Internet mit bis zu 1000 MBit/s möglich
-Laufend...
Preisinformation
3 Stellplätze
2 Garagenstellplätze
Soll-Mieteinnahmen pro Jahr: 39.561,24 EUR
Weitere Informationen
Sonstiges
Unser Service für Sie als Eigentümer: Wir bewerten gerne kostenfrei Ihre Immobilie zum aktuellen Marktwert, entwickeln eine individuelle Verkaufsstrategie und stehen Ihnen über den eigentlichen Verkauf Ihrer Immobilie bis zur erfolgreichen Schlüsselübergabe zur Verfügung. Kommen Sie einfach bei uns vorbei, rufen...
Anbieter der Immobilie
Markus Frey Immobilien
Turnhallestr. 38, 72250 Freudenstadt

Online-ID: 2kkkb5z
Referenznummer: 4540#CDkUN
Finde Angebote wie dieses
Hier geht es zu unserem Impressum, den Allgemeinen Geschäftsbedingungen, den Hinweisen zum Datenschutz und nutzungsbasierter Online-Werbung.