
Visio Planhaus Schweich GmbH
Herr Christian Gerten
065 ···
Nr. anzeigenPreise & Kosten
Provision für Käufer
provisionsfrei
Lage
Oberkail zählt zu einer beliebten Ortsgemeinde der Verbandsgemeinde Bitburger Land in Rheinland-Pfalz. Neben den ausgezeichneten Verkehrsanbindungen nach Süden, Westen und Norden und mit der Fertigstellung des Hochmoselübergangs auch ins Rhein/Main Gebiet, mit Flughäfen, Binnenhafen und Bahnverbindungen im Umkreis von 80km.
Das Haus
Kategorie
Einfamilienhaus
Geschosse
2 Geschosse
Baujahr
2025
Bezug
2026
Energie & Heizung
Warum sehe ich diese Anzeige? – Du siehst diese Anzeige basierend auf Ihrer Navigation auf unserer Website und den Suchkriterien, die du verwendet hast.
Weitere Energiedaten
Haustyp
KfW 55, Massivhaus
Heizungsart
Fußbodenheizung, Luft-/Wasser-Wärmepumpe
Details
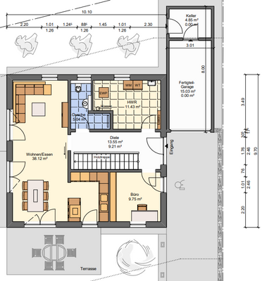
Objektbeschreibung
Die Kosten für das Grundstück fallen separat an.
+++ Wohnen im repräsentativen Neubau +++
Erleben Sie erstklassigen Wohnkomfort auf hohem Niveau in einem modernen und abwechslungsreichen Umfeld. In einer ruhig gelegenen Straße mit verkehrsgünstiger Anbindung entsteht dieses Einfamilienhaus nach den Kriterien des...
Ausstattung
Ausstattung:
+ Rein massive, monolithische Bauweise
+ Energieeffizienz nach dem aktuellen Gebäudeenergiegesetz
+ Garage bzw. Carport bieten wir gerne auf Wunsch an!
+ Moderne Grundrisse und hochwertige Ausstattung
+ Vollflächige Fußbodenheizung mit Einzelraumsteuerung
+ Fenster aus Kunststoff mit 3-facher...
Weitere Informationen
Impressum
Impressum:
Visio Planhaus Schweich GmbH
Im Handwerkerhof 1a
54338 Schweich-Issel
Telefon: +49 (0)6502 93096-0
Homepage: https://www.visioplanhaus.de/
Rechtliche Angaben
Registernummer: HRB 43432
USt-IdNr.: 42/658/06733
Registergericht: Amtsgericht Wittlich
Gewerbeerlaubnis gem. §34c...
Anbieter der Immobilie
Online-ID: 2kkky5q
Referenznummer: OBE_P01
Finde Angebote wie dieses
Hier geht es zu unserem Impressum, den Allgemeinen Geschäftsbedingungen, den Hinweisen zum Datenschutz und nutzungsbasierter Online-Werbung.