

abc Specht GmbH & Co. KG - Immobilienmakler
Herr Maximilian Specht
(02 ···
Nr. anzeigenPreise & Kosten
Provision für Käufer
Bitte beachte, das Angebot kann bei Vertragsabschluss die Zahlung einer Provision beinhalten. Weitere Informationen erhältst Du vom Anbieter.
Lage
In Braubach, in einem breiten Tal am Fuße der Marksburg ist das Wohngebiet perfekt eingebettet in die umgebende Landschaft. Mitten im Unesco Weltkulturerbe Mittelrhein, mit Blick auf die historische Marksburg, genießen Sie die Sonne von früh bis spät.
Romantische Fachwerkhäuser, enge Altstadtgassen, verwunschene Plätze...
Die Wohnung
Kategorie
Penthouse
Wohnanlage
Energie & Heizung
Warum sehe ich diese Anzeige? – Du siehst diese Anzeige basierend auf Ihrer Navigation auf unserer Website und den Suchkriterien, die du verwendet hast.
Energieausweistyp
Bedarfsausweis
Gebäudetyp
Wohngebäude
Baujahr laut Energieausweis
2027
Wesentliche Energieträger
LUFTWP
Gültigkeit
bis 12.09.2037
Effizienzklasse
A+
Endenergiebedarf
10,00 kWh/(m²·a)
Weitere Energiedaten
Heizungsart
Fußbodenheizung, Luft-/Wasser-Wärmepumpe, Zentralheizung
Details
Objektbeschreibung
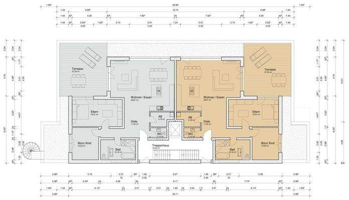
Auf dem Grundstück entstehen 4 Objekte mit 35 hochwertigen Eigentumswohnungen. Das Haus Luma umfasst 10 Wohneinheiten. Alle Wohnungen der seniorengerechten Wohnanlage verfügen über einen Balkon oder eine Terrasse. Ebenso verfügt jede Wohnung über einen Keller - für extra Stauraum. Jedes Haus hat einen Aufzug.
Die Fotos...
Ausstattung
- dreifach-isolierverglaste Kunststoff-Fenster
- elektrische Rollläden vorhanden
- Fußbodenheizung mit Einzelraumregelung
- Bodenbeläge Parkett, Laminat oder Fliesen, je nach Wahl
- Ausstattungsmerkmale noch frei wählbar
Weitere Informationen
Sonstiges
Es fällt keine zusätzliche Maklercourtage an.
Die m²-Angaben der Balkone sind in den Grundrissplänen mit 50% ihrer Grundfläche berechnet.
Stichworte
Anzahl der Schlafzimmer: 2, Anzahl der Badezimmer: 1, Anzahl der separaten WCs: 1, Anzahl Terrassen: 1, Distanz vom Zentrum: 0.90
Anbieter der Immobilie

Online-ID: 2kkmz5w
Referenznummer: BRA-Luma10
Finde Angebote wie dieses
Hier geht es zu unserem Impressum, den Allgemeinen Geschäftsbedingungen, den Hinweisen zum Datenschutz und nutzungsbasierter Online-Werbung.