
Wohnungsverwaltung und Bau GmbH
Frau Kerstin Petzold
035 ···
Nr. anzeigenPreise & Kosten
Kaution
843
Warum sehe ich diese Anzeige? – Du siehst diese Anzeige basierend auf Ihrer Navigation auf unserer Website und den Suchkriterien, die du verwendet hast.
Lage
Direkt im Stadtzentrum von Löbau liegt Ihre neue Traumwohnung! Sie erreichen verschiedene Einkaufsmöglichkeiten (z.B. Lebensmittel, Post oder Apotheke) fußläufig in wenigen Gehminuten. Auch der Bahnhof und der zentrale Busbahnhof befinden sich in näherer Umgebung. Einen Blick ins ;Grüne; erhalten Sie aus dem Schlafzimmer in...
Die Wohnung
Wohnungslage
3. Geschoss
Wohnanlage
Energie & Heizung
Warum sehe ich diese Anzeige? – Du siehst diese Anzeige basierend auf Ihrer Navigation auf unserer Website und den Suchkriterien, die du verwendet hast.
Energieausweis: für diesen Gebäudetyp nicht notwendig
Weitere Energiedaten
Energieträger
Fernwärme
Heizungsart
Zentralheizung
Details
Objektbeschreibung
Objektbeschreibung
Sie mögen es hell und gemütlich? Dann lesen Sie weiter. Wir bieten Ihnen Wohlfühlatmosphäre auf 56 m². Die Wohnung steht ab sofort zur Verfügung.
Besichtigungen können jederzeit stattfinden!
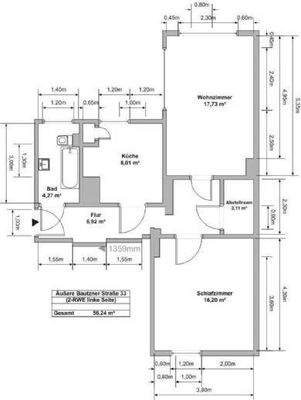
Raumaufteilung
Wohnzimmer: 17,73 m²
Schlafzimmer: 16,20 m²
Flur: 6,92 m²
Küche: 8,01...
Weitere Informationen
Besichtigungstermine
Besichtigungstermine nach Vereinbarung.
Ihre Ansprechpartnerin ist Frau Petzold
Telefon 03585 4785 15
E-Mail: info@wobauloebau.de
Wenn Sie mehr zu diesem Objekt erfahren möchten, senden Sie bitte Ihre Adressdaten, Telefonnummer und Ihre E- Mail Adresse, wir werden uns umgehend mit...
Anbieter der Immobilie
Wohnungsverwaltung und Bau GmbH
Sporgasse 1, 02708 Löbau
Online-ID: 2kkq35f
Referenznummer: 0421.007.
Finde Angebote wie dieses
Hier geht es zu unserem Impressum, den Allgemeinen Geschäftsbedingungen, den Hinweisen zum Datenschutz und nutzungsbasierter Online-Werbung.