
Zastrau Immobilien
Herr Björn Gilbers
004 ···
Nr. anzeigenPreise & Kosten
Provision für Käufer
3,57% inkl. MwSt. inkl. MwSt.
Lage
Zentral, lebendig und bestens angebunden - Lagequalität am Steinweg in Emden
Der geplante Neubau im Steinweg überzeugt durch eine Lage, die urbanes Leben und ruhiges Wohnen harmonisch vereint. Nur rund 1,5 Kilometer trennen das Objekt von der Emder Innenstadt und dem Hauptbahnhof - kurze Wege, die sowohl für Pendler...
Die Wohnung
Wohnungslage
Erdgeschoss
Wohnanlage
Details
Objektbeschreibung
Moderne 3-Zimmer-Erdgeschosswohnung in zentraler Lage von Emden (Neubauprojekt)
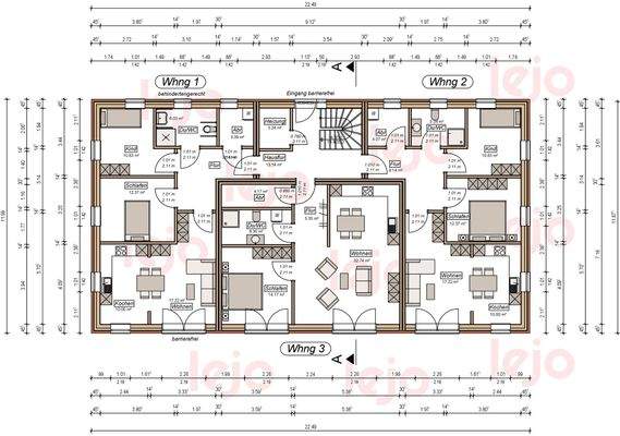
Es Handelt sich hier um Wohnung 2 auf den Grundrissen.
In einem attraktiven Neubauprojekt in stadtnaher Lage von Emden entsteht ein modernes 5-Parteienhaus mit zeitgemäßer Architektur und nachhaltigem Energiekonzept. Die hier...
Preisinformation
1 Stellplatz
Weitere Informationen
Stichworte
Anzahl der Schlafzimmer: 2, Anzahl der Badezimmer: 1, Anzahl Balkone und Terrassen: 1
Anbieter der Immobilie
Zastrau Immobilien
Bürgermeister-Lüken-Platz 6C, 26624 Südbrookmerland
Online-ID: 2kkvf5m
Referenznummer: 2025-0102
Finde Angebote wie dieses
Hier geht es zu unserem Impressum, den Allgemeinen Geschäftsbedingungen, den Hinweisen zum Datenschutz und nutzungsbasierter Online-Werbung.