
Bricks & Mortar Immobilien National GmbH
Herr Daniel Pilger
004 ···
Nr. anzeigenPreise & Kosten
Provision für Käufer
7,14% Käuferprovision inkl. 19% MwSt. inkl. MwSt.
Abschreibung/Anlage
Denkmalschutz-Afa
Lage
Diese außergewöhnliche Immobilie befindet sich in zentraler Lage von Meißen, nur wenige Schritte von der berühmten Albrechtsburg und dem Meißner Dom entfernt. Eingebettet in die historische Altstadt, profitiert das Anwesen von einer einzigartigen Kulisse aus malerischen Gassen, historischen Bauwerken und der unmittelbaren...
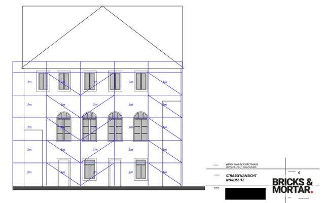
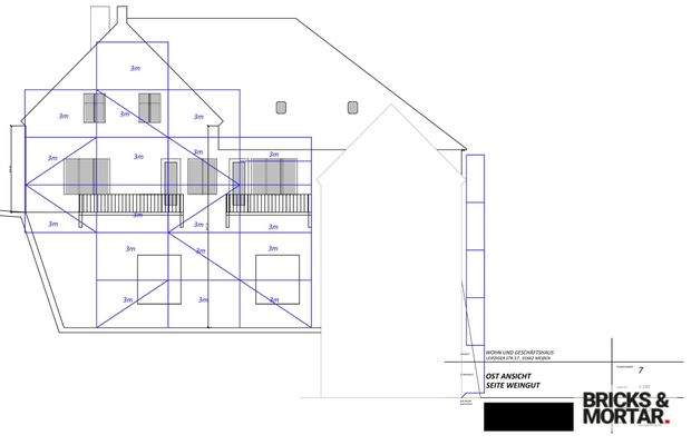
Das Haus
Kategorie
Mehrfamilienhaus
Baujahr
1850
Energie & Heizung
Warum sehe ich diese Anzeige? – Du siehst diese Anzeige basierend auf Ihrer Navigation auf unserer Website und den Suchkriterien, die du verwendet hast.
Energieausweis: für diesen Gebäudetyp nicht notwendig
Weitere Energiedaten
Haustyp
Massivhaus
Energieträger
Gas
Details
Objektbeschreibung
Dieses außergewöhnliche, denkmalgeschützte Anwesen in zentraler Lage von Meißen erzählt eine faszinierende Geschichte. Einst Teil des renommierten Weinguts Friedenshain, wurde das Gebäude vielseitig genutzt - als Ballsaal, Weingarten, Billardraum und Kegelbahn. Heute bietet es eine seltene Gelegenheit, ein Stück...
Ausstattung
++ Denkmalgeschütztes Gebäude mit geschichtsträchtiger Vergangenheit
++ Ehemaliger Ballsaal, Weingarten, Billardraum und Kegelbahn
++ Gewölbekeller
++ Zusätzlicher Pavillon über zwei Etagen als Wohnmöglichkeit
++ Neue Fenster und Türen straßenseitig
++ Neue Gasbrennwerttherme
++ Neuer Schaltschrank
++...
Weitere Informationen
Stichworte
Bundesland: Sachsen, Distanz zum Kindergarten: 0.86, Distanz zur Grundschule: 0.10, Distanz zur nächsten Einkaufsmöglichkeit: 1.10, Distanz zum Gymnasium: 0.64, Distanz zum Flughafen: 26.00, Distanz zum Hauptbahnhof: 1.20, Distanz zur Autobahn: 12.50, Distanz zum Bus: 0.48, Distanz zur nächsten Gaststätte: 0.21...
Anbieter der Immobilie
Bricks & Mortar Immobilien National GmbH
Dieselstraße 41, 86368 Gersthofen
Online-ID: 2kkxc5z
Referenznummer: 11728
Finde Angebote wie dieses
Hier geht es zu unserem Impressum, den Allgemeinen Geschäftsbedingungen, den Hinweisen zum Datenschutz und nutzungsbasierter Online-Werbung.