
LBI Wohnen und Service GmbH
Herr Daniel Bartsch
+49 ···
Nr. anzeigenPreise & Kosten
Provision für Käufer
5,95 % inkl. MwSt. vom beurkundeten Kaufpreis
Lage
34281 - Gudensberg
Alle erforderlichen behördlichen und/oder schulischen Einrichtungen (Kindergarten und Grundschule), Einkaufsmöglichkeiten, Nahverkehrsanschluss, Ärzte, Apotheken, etc. befinden sich direkt im Ort und sind überwiegend auch gut zu Fuß zu erreichen.
Sehr gute Anbindung zur Autobahn A49
Die Immobilie
Zu diesem Angebot wurden vom Anbieter keine weiteren Daten hinterlegt. Für weitere Informationen bitte den Anbieter kontaktieren.
Nach Informationen fragenDetails
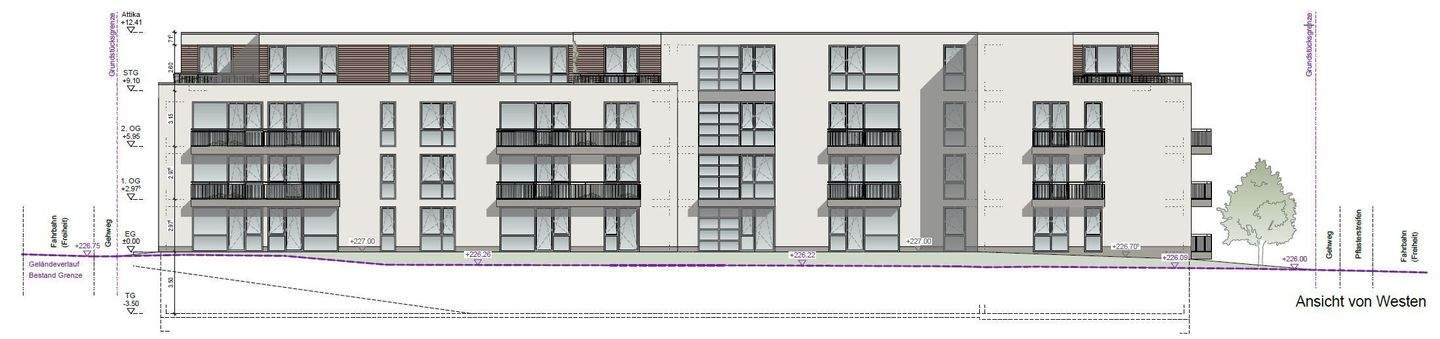
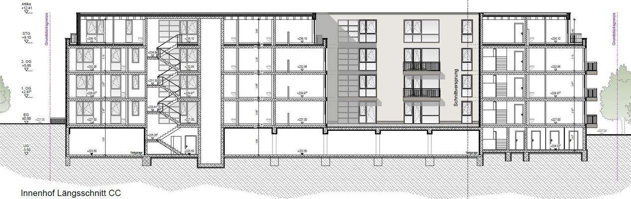
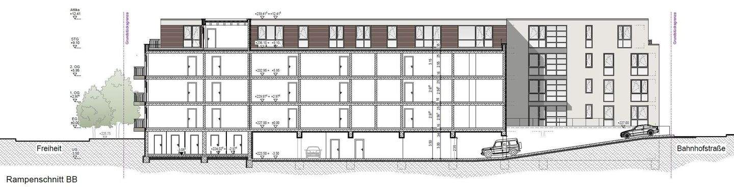
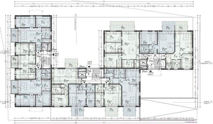
Objektbeschreibung
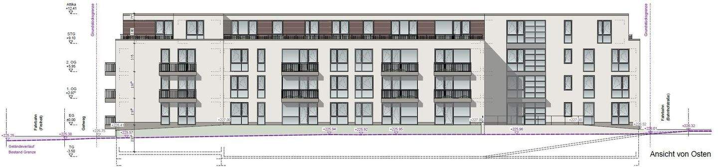
Im Herzen von Gudensberg (PLZ 34281) bieten wir Ihnen ein großzügiges Baugrundstück mit einer Fläche von ca. 2.442 m², ideal geeignet für ein modernes Neubauprojekt mit umfassendem Konzept. Mit bereits erteilter Baugenehmigung ist das Grundstück bereit für den Start eines anspruchsvollen Bauvorhabens, das insgesamt 37...
Preisinformation
39 Tiefgaragenstellplätze
Weitere Informationen
Sonstiges
Alle Angaben sind ohne Gewähr und basieren ausschließlich auf Informationen unseres Auftraggebers. Es wird keine Gewähr für die Vollständigkeit, Richtigkeit und Aktualität dieser Angaben von uns übernommen. Es gelten unsere AGBs.
Stichworte
Tiefgarage vorhanden, Anzahl Balkone: 1, Bundesland: Hessen, 4...
Anbieter der Immobilie
Online-ID: 2kld85s
Referenznummer: 342817
Finde Angebote wie dieses
Hier geht es zu unserem Impressum, den Allgemeinen Geschäftsbedingungen, den Hinweisen zum Datenschutz und nutzungsbasierter Online-Werbung.