
Friedrichs Immobilien GmbH
Herr Stefan Hungerland
004 ···
Nr. anzeigenPreise & Kosten
Provision für Käufer
2,98 % des Kaufpreises inkl. Mehrwertsteuer
Lage
Profitieren Sie auch von der attraktiven Lage dieses Neubau-Wohn- und Geschäftshauses im Zentrum von Bad Zwischenahn! Der Marktplatz mit Kirche, Rathaus und dem direkt angrenzenden Kurpark-Gelände mit dem Zwischenahner Meer liegt nur ca. 400 m entfernt und ist fußläufig in fünf Minuten erreicht. Dort beginnt auch die...
Die Wohnung
Wohnungslage
Erdgeschoss
Wohnanlage
Energie & Heizung
Warum sehe ich diese Anzeige? – Du siehst diese Anzeige basierend auf Ihrer Navigation auf unserer Website und den Suchkriterien, die du verwendet hast.
Energieausweistyp
Bedarfsausweis
Gebäudetyp
Wohngebäude
Baujahr laut Energieausweis
2025
Wesentliche Energieträger
ELECTRICITY
Gültigkeit
bis 15.11.2035
Effizienzklasse
A+
Endenergiebedarf
17,80 kWh/(m²·a)
Weitere Energiedaten
Heizungsart
Fußbodenheizung, Luft-/Wasser-Wärmepumpe
Details
Objektbeschreibung
** Beispielfotos der Wohnung Nr. 19 können Sie aus dem Exposé entnehmen. **
In diesem aufwendigen Neubauprojekt in begehrter, zentraler Lage unseres Kur- und Ferienortes Bad Zwischenahn entstehen 20 moderne Eigentumswohnungen im Erd-, Ober- und Dachgeschoss sowie eine großflächige Gewerbeeinheit im Erdgeschoss. Das...
Ausstattung
Die Kaufpreise, die genaue Aufteilung und Größe der Räumlichkeiten in den einzelnen Wohnungen nebst Grundrissen, weitere detaillierte Beschreibungsmerkmale und Hinweise zur Lage sowie zum Umkreis finden Sie in unserem ausführlichen Exposé.
Weitere Informationen
Stichworte
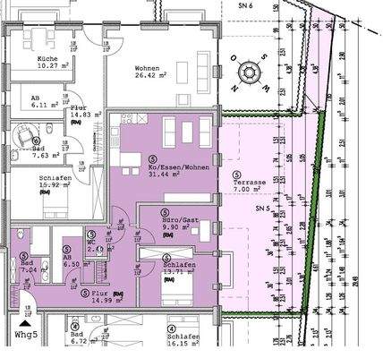
Tiefgarage vorhanden, Gesamtfläche: 93,00 m², Anzahl der Schlafzimmer: 2, Anzahl der Badezimmer: 1, Anzahl der separaten WCs: 1, Anzahl Terrassen: 1
Anbieter der Immobilie
Friedrichs Immobilien GmbH
Peterstraße 37, 26160 Bad Zwischenahn
Online-ID: 2klec5g
Referenznummer: 260824-5
Finde Angebote wie dieses
Hier geht es zu unserem Impressum, den Allgemeinen Geschäftsbedingungen, den Hinweisen zum Datenschutz und nutzungsbasierter Online-Werbung.