
Marko Künne Immobilien
034 ···
Nr. anzeigenPreise & Kosten
Provision für Käufer
provisionsfrei
Lage
Leipzig-Kleinzschocher zählt zu den charmanten, aufstrebenden Stadtteilen im Südwesten der Messestadt. Geprägt von einer Mischung aus gründerzeitlicher Architektur, weitläufigen Grünflächen und ruhigen Wohnstraßen, erfreut sich das Viertel zunehmender Beliebtheit bei jungen Familien, Berufstätigen und Kapitalanlegern...
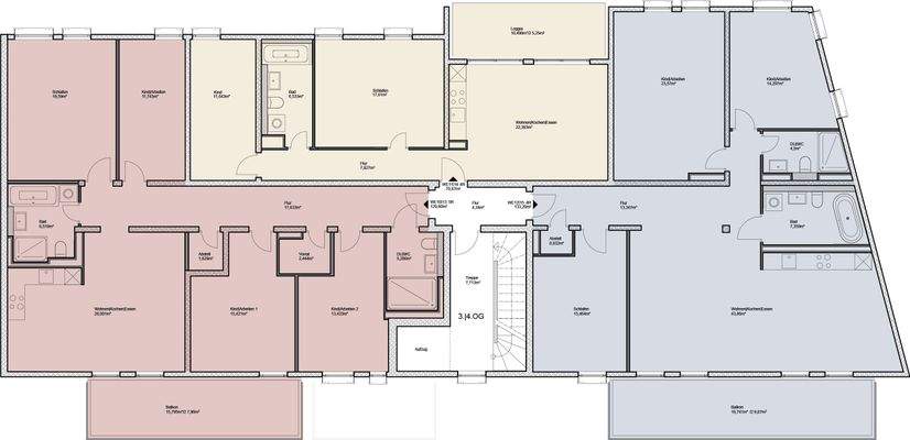
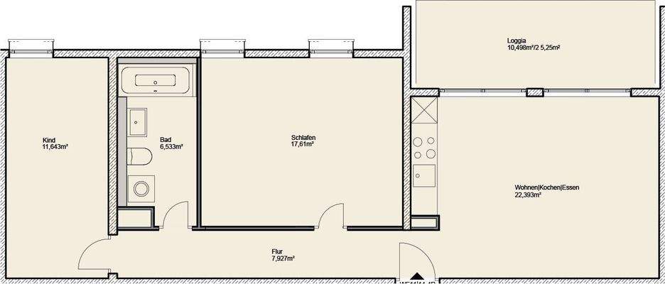
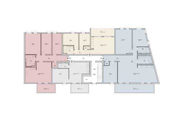
Die Wohnung
Wohnungslage
4. Geschoss
Wohnanlage
Energie & Heizung
Warum sehe ich diese Anzeige? – Du siehst diese Anzeige basierend auf Ihrer Navigation auf unserer Website und den Suchkriterien, die du verwendet hast.
Energieausweistyp
Bedarfsausweis
Gebäudetyp
Wohngebäude
Wesentliche Energieträger
Strom
Weitere Energiedaten
Energieträger
Elektro
Details
Objektbeschreibung
In einem modernen Neubauprojekt im Südwesten von Leipzig entsteht Ihre neue Eigentumswohnung - ideal für Paare, kleine Familien oder Menschen mit Sinn für stilvolles Wohnen auf kompakter Fläche. Die ca. 70 m² große 4-Zimmer-Wohnung bietet durch ihre clevere Raumaufteilung ein durchdachtes Wohnkonzept mit maximalem...
Preisinformation
Nettorendite Soll in %: 3,6
Soll-Mieteinnahmen pro Jahr: 14.032,26 EUR
Weitere Informationen
Sonstiges
Alle Angaben sind ohne Gewähr und basieren ausschließlich auf Informationen, die uns von unserem Auftraggeber zur Verfügung gestellt wurden. Wir übernehmen keine Gewähr für die Vollständigkeit, Richtigkeit und Aktualität dieser Angaben.
Stichworte
Tiefgarage vorhanden, Anzahl der Schlafzimmer: 2, Anzahl...
Anbieter der Immobilie
Online-ID: 2klf65w
Referenznummer: Dieskaustr. 49 WE 14
Finde Angebote wie dieses
Hier geht es zu unserem Impressum, den Allgemeinen Geschäftsbedingungen, den Hinweisen zum Datenschutz und nutzungsbasierter Online-Werbung.