

Rudlof Grundstückshandel & Immobilien
Herr Eckehardt Rudlof
033 ···
Nr. anzeigenPreise & Kosten
Provision für Käufer
7,14 % inklusive gesetzliche Mehrwertsteuer vom Käufer.
Lage
Die Bungalowsiedlung liegt direkt am Bötzsee, gehört zu Altlandsberg, liegt aber an der Grenze zu Eggersdorf. Dadurch finden sie neben Einkaufsmöglichkeiten, Gaststätten,
öffentliche Verkehrsmittel in 5 - 10 Minuten fußläufiger Reichweite. Weitere Annehmlichkeiten wir Ärzte, Dienstleister und den S - Bahnanschluss...
Das Haus
Geschosse
1 Geschoss
Baujahr
1970
Bezug
zeitnah gemäß Kaufvertrag!
Derzeitige Nutzung
frei
Energie & Heizung
Warum sehe ich diese Anzeige? – Du siehst diese Anzeige basierend auf Ihrer Navigation auf unserer Website und den Suchkriterien, die du verwendet hast.
Energieausweis: für diesen Gebäudetyp nicht notwendig
Weitere Energiedaten
Haustyp
Holzhaus
Energieträger
Gas
Heizungsart
Zentralheizung
Details
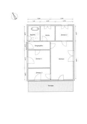
Objektbeschreibung
Objektbeschreibung
Der Bungalow wurde ca. 1970 in Holzständerbauweise errichtet und ab 1995 komplett modernisiert, Elektrik neu, wärmegedämmt, Bad mit Wanne und WC, Gas-Zentralheizung (Gastherme 2020 neu) und wandhängende Heizkörper mit neuen Thermostaten, Kunststoffisolierglasfenster mit Jalousien.
Der Bungalow liegt...
Weitere Informationen
Besichtigungstermine
Zeitnah-nach Vereinbarung möglich!
Stichworte
Zustand: renoviert, gepflegt
Versorgung: Städtische Wasserversorgung, Städtische Stromversorgung
Dokumente
Anbieter der Immobilie
Rudlof Grundstückshandel & Immobilien
Ferdinand-Dam-Str. 25, 15345 Eggersdorf

Online-ID: 2klfw5g
Referenznummer: H-2025-166
Finde Angebote wie dieses
Hier geht es zu unserem Impressum, den Allgemeinen Geschäftsbedingungen, den Hinweisen zum Datenschutz und nutzungsbasierter Online-Werbung.