

Badry Immobilien
Frau Andrea Badry
065 ···
Nr. anzeigenPreise & Kosten
Provision für Käufer
provisionsfrei
Lage
Die Neubauprojekt befindet sich in ausgezeichneter Lage: Sie ist fußläufig in nur ca. 500 m Entfernung zur Porta Nigra und gleichzeitig in nur ca. 150 m Entfernung zum Hauptbahnhof Trier.
Urbanes Leben in einem beliebten Wohnumfeld mit modernem Wohnkomfort sowie allen Vorteilen einer modernen Eigentumswohnung umgeben von...
Die Wohnung
Kategorie
Apartment
Wohnungslage
1. Geschoss
Bezug
ca. Ende 2026/Anfang 2027
Wohnanlage
Energie & Heizung
Warum sehe ich diese Anzeige? – Du siehst diese Anzeige basierend auf Ihrer Navigation auf unserer Website und den Suchkriterien, die du verwendet hast.
Energieausweistyp
Bedarfsausweis
Gebäudetyp
Wohngebäude
Baujahr laut Energieausweis
2025
Wesentliche Energieträger
Wärmepumpe
Gültigkeit
06.06.2023 bis 06.06.2033
Effizienzklasse
A+
Endenergiebedarf
16,00 kWh/(m²·a)
Weitere Energiedaten
Heizungsart
Luft-/Wasser-Wärmepumpe
Details
Objektbeschreibung
Diese komfortable Neubauwohnung wird demnächst in zentraler Lage mitten in Trier-City, mitten im Leben in energieeffizienter Bauweise gebaut. Die moderne Eigentumswohnung wäre beispielsweise besonders geeignet für Berufspendler, Senioren, Singles oder Paare, die eine Eigentumswohnung in urbaner Lage mit ausreichendem Freiraum...
Ausstattung
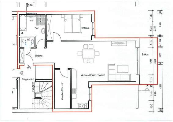
Raumaufteilung:
4,76 m2 - Diele
1,80 m2 - Gäste-WC
44,20 m2 - Wohnen / Essen / Kochen
7,45 m2 - Abstellraum / Technik
14,02 m2 - Schlafen
7,84 m2 - Bad
5,24 m2 - Balkon
Ausstattungsdetails (auszugsweise):
- Aufzug für barrierefreien Zugang
- Fußbodenheizung für ein angenehmes Raumklima
...
Preisinformation
1 Stellplatz, Kaufpreis: 17.500,00 EUR
Weitere Informationen
Sonstiges
Hinweis:
Die Angaben zum Baujahr, Größenangaben und Energieausweis und sonstigen Angaben stammen vom Bauherren/Bauträger. Alle Angaben ohne Gewähr. Die Inhalte dieses Exposés wurden nach Aussagen und vorgelegten Unterlagen des Bauherren/Bauträgers erstellt. Angaben zu Größen und Abmessungen sind Circa-Angaben...
Anbieter der Immobilie
Badry Immobilien
Am Markt 16, 54329 Konz

Online-ID: 2klmk5n
Referenznummer: 5786#XmFHXP
Finde Angebote wie dieses
Hier geht es zu unserem Impressum, den Allgemeinen Geschäftsbedingungen, den Hinweisen zum Datenschutz und nutzungsbasierter Online-Werbung.