

Jones Lang LaSalle SE - Office Leasing Rhein-Ruhr
Herr Martin Jahnke
+49 ···
Nr. anzeigenPreise & Kosten
Provision für Mieter
provisionspflichtig für den Mieter/Käufer
Warum sehe ich diese Anzeige? – Du siehst diese Anzeige basierend auf Ihrer Navigation auf unserer Website und den Suchkriterien, die du verwendet hast.
Büro-/Praxisfläche
Kategorie
Bürofläche
Baujahr
1960
Bezug
Sofort
Details
Objektbeschreibung
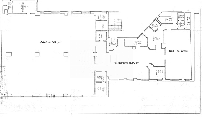
Die sehr hellen und flexibel gestaltbaren Büroflächen gestatten dem zukünftigen Nutzer seiner Kreativität freien Raum zu lassen. Viele Nutzungen sind hier möglich, von Schulung bis zum klassischen Büro, kann diese Fläche Ihr neuer Standort werden.
Weitere Informationen
Stichworte
Gesamtfläche: 1.603,00 m²
Anbieter der Immobilie
Jones Lang LaSalle SE - Office Leasing Rhein-Ruhr
Grugaplatz 2-4, 45131 Essen

Online-ID: 2klp257
Referenznummer: 4@of88799@14@0
Finde Angebote wie dieses
Hier geht es zu unserem Impressum, den Allgemeinen Geschäftsbedingungen, den Hinweisen zum Datenschutz und nutzungsbasierter Online-Werbung.