

Ronald Stopp Immobilien
Herr Ronald Stopp
+49 ···
Nr. anzeigenPreise & Kosten
Verhandlungsbasis
Provision für Käufer
4,76 % inklusive gesetzlicher MwSt.
Lage
Ruhige Wohnlage im Chemnitz/Sonnenberg und ca. 7 Fahrminuten entfernt von der Chemnitzer Innenstadt. Die Lage zeichnet sich durch eine sehr gute Infrastruktur aus.
Der Sonnenberg ist ein Chemnitzer Stadtteil. Der Sonnenberg ist ein typisches Gründerzeitviertel, überwiegend mit Blockrandbebauung. An ihn grenzen die...
Das Renditeobjekt
Kategorie
Mehrfamilienhaus
Baujahr
1907
Bezug
sofort
Frei ab
vermietet
Energie & Heizung
Warum sehe ich diese Anzeige? – Du siehst diese Anzeige basierend auf Ihrer Navigation auf unserer Website und den Suchkriterien, die du verwendet hast.
Weitere Energiedaten
Energieträger
Gas
Heizungsart
Zentralheizung
Details
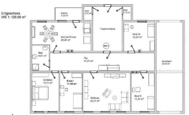
Objektbeschreibung
Alle Wohnungen haben modern geflieste Bäder, sieben Stellplätze und sieben Balkone. Das Objekt verfügt derzeit über ein Mieten-IST von jährlich ca. 40.000,00 € und ist vollvermietet. Der Kaufpreis setzt sich zusammen aus 570 t€ für das Gebäude und 36 t€ für die Stellplätze.
- Charmantes Mehrfamilienhaus in ruhiger...
Ausstattung
WG geeignet,
Bad mit Wanne
Bad mit Dusche
Fliesen,
Laminat,
7 Balkone,
7 Wohnungen,
7 Außenstellplätze,
Keller,
Vollwärmeschutz,
Unterkellert (Voll),
Hausmeister,
Autobahnanschluß,
Einkaufsmöglichkeiten,
Kunststofffenster
Preisinformation
6 Stellplätze, Kaufpreis je: 6.000,00 EUR
Soll-Mieteinnahmen pro Jahr: 39.954,00 EUR
Ist-Mieteinnahmen pro Jahr: 39.954,00 EUR
Weitere Informationen
Sonstiges
Alle Daten beziehen sich auf die uns vorliegenden Pläne, uns übergebenen Unterlagen sowie Aussagen des Eigentümers. Für die Richtigkeit dieser Angaben, Irrtümer oder Änderungen können wir keine Haftung übernehmen.
Der Energieausweis ist bereits durch uns beim Eigentümer angefragt, dieser liegt uns aber...
Anbieter der Immobilie

Online-ID: 2klsf5w
Referenznummer: mfh_PG_rend (1/3162)
Finde Angebote wie dieses
Hier geht es zu unserem Impressum, den Allgemeinen Geschäftsbedingungen, den Hinweisen zum Datenschutz und nutzungsbasierter Online-Werbung.