
Löw Immobilien GmbH
Herr Marco Schwing
+49 ···
Nr. anzeigenPreise & Kosten
Kaution
0
Provision für Käufer
0% inkl. MwSt vom Kaufpreis fällig nach Notartermin
Lage
Wohnen mit höchsten energetischen Standard , am Löhle in Eckersmühlen.
Eckermühlen ist ein Gemeindeteil der Kreisstadt Roth.
In Eckersmühlen finden Sie eine Kindertagesstätte sowie eine Volksschule, weiterführende Schulen wie Realschule, Gymnasium, Berufschule sowie Fachschulen finden Sie in...
Das Haus
Kategorie
Einfamilienhaus
Baujahr
2025
Bezug
Sofort
Energie & Heizung
Warum sehe ich diese Anzeige? – Du siehst diese Anzeige basierend auf Ihrer Navigation auf unserer Website und den Suchkriterien, die du verwendet hast.
Weitere Energiedaten
Haustyp
Massivhaus
Details
Objektbeschreibung
KFW 40 plus Nachhaltigkeit, Wohnen an der Zwillach mit zukunftsweisendem Energiekonzept in Eckersmühlen.
Verkaufsstart für den ersten Bauabschnitt im Norden.
Am Löhle in Eckersmühlen entstehen insgesamt acht Einfamilienhäuser mit KFW 40-Fördermöglichkeit auf dem höchsten energetischen Standard in...
Ausstattung
- höchster energetischer Standard
- Solide Massivbauweise
- Photovoltaikanlage mit Batteriespeicher
- Glasfaser
- Treppe als Holz-Stahlkonstruktion ( Buche ) mit Handlauf
- Wärmedämmung
- Photovoltaikanlage
- hochwertige Kunststofffenster ( 3-fach Isolierverglasung...
Preisinformation
2 Garagenstellplätze
Weitere Informationen
Stichworte
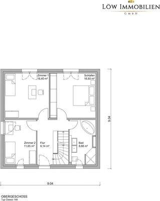
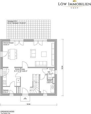
Rolladen, Gesamtfläche: 191,00 m², Bundesland: Bayern, 2 Etagen, Lage im Neubaugebiet
Anbieter der Immobilie
Online-ID: 2kltt5n
Referenznummer: 45334
Finde Angebote wie dieses
Hier geht es zu unserem Impressum, den Allgemeinen Geschäftsbedingungen, den Hinweisen zum Datenschutz und nutzungsbasierter Online-Werbung.