
Aux Immo
Herr Max von Schönfeldt
004 ···
Nr. anzeigenPreise & Kosten
Kaution
1.980,00
Provision für Mieter
Bitte beachte, das Angebot kann bei Vertragsabschluss die Zahlung einer Provision beinhalten. Weitere Informationen erhältst Du vom Anbieter.
Warum sehe ich diese Anzeige? – Du siehst diese Anzeige basierend auf Ihrer Navigation auf unserer Website und den Suchkriterien, die du verwendet hast.
Lage
Das Bürogebäude profitiert von der hervorragenden Lage. Die Anbindung der A8 ist mit dem Auto in fünf Minuten zu erreichen und lässt die Landeshauptstadt München sowie die Universitätsstadt Ulm in weniger als einer Stunde erreichen. Auch die Lage in Neusäß bietet im Umkreis von drei bis fünf Gehminuten eine Vielzahl an...
Büro-/Praxisfläche
Kategorie
Bürofläche
Details
Objektbeschreibung
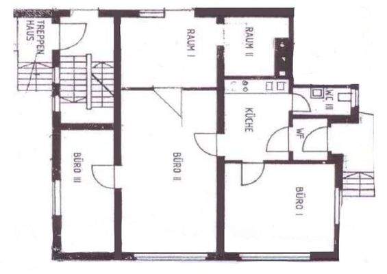
Die Büroeinheit mit einer Fläche von ca. 82,7 m² bietet passende Rahmenbedingungen für unterschiedliche Arbeitskonzepte.
Sie eignet sich für kleinere Unternehmen, Start-ups oder als zusätzliche Bürofläche für Betriebe mit weiterem Raumbedarf. Die Aufteilung ermöglicht sowohl die Einrichtung mehrerer Arbeitsplätze als...
Ausstattung
Optionale Zusatzflächen - Lagerkeller & Büroeinheit
Geräumiger Keller mit Tageslicht und Abfahrtsrampe:
Optional kann ein ca. 135,76?m² großer Keller mit Tageslicht angemietet werden. Die Fläche eignet sich ideal als Lagerraum oder zur Archivierung und ist über eine praktische Rampe...
Preisinformation
Nettokaltmiete: 660,00 EUR
Weitere Informationen
Stichworte
Gesamtfläche: 82,70 m²
Anbieter der Immobilie
Aux Immo
Kirchgasse 3b, 86150 Augsburg
Online-ID: 2km3z5w
Referenznummer: 184
Finde Angebote wie dieses
Hier geht es zu unserem Impressum, den Allgemeinen Geschäftsbedingungen, den Hinweisen zum Datenschutz und nutzungsbasierter Online-Werbung.