
Edwin Martin Kiefer Immobilien
Herr Edwin Kiefer
+49 ···
Nr. anzeigenPreise & Kosten
Provision für Käufer
Es fällt keine Käuferprovision an.
Lage
Die Lage in der Eisenbahnstraße verbindet zentrale Erreichbarkeit mit angenehmer Wohnqualität. In wenigen Minuten erreichen Sie Einkaufsmöglichkeiten, ÖPNV, den Rhein sowie die Grenze zur Schweiz.
Die Wohnung
Bezug
30.11.2026
Wohnanlage
Energie & Heizung
Warum sehe ich diese Anzeige? – Du siehst diese Anzeige basierend auf Ihrer Navigation auf unserer Website und den Suchkriterien, die du verwendet hast.
Weitere Energiedaten
Heizungsart
Zentralheizung
Details
Objektbeschreibung
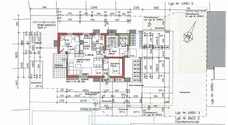
In begehrter Lage von Weil am Rhein entsteht bis 2026 ein modernes Mehrfamilienhaus mit nur 9 Wohneinheiten – ideal für Menschen, die Wert auf Qualität, Komfort und eine gute Anbindung legen. Die hier angebotene 2-Zimmer-Wohnung vereint zeitgemäßen Wohnkomfort mit effizientem Grundriss.
Auf ca. 47,37 m² Wohnfläche...
Ausstattung
Highlights der Wohnung:
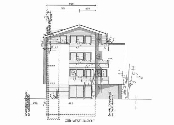
Balkon mit Süd-/West-Ausrichtung
Effizient geplanter Grundriss
Kellerabteil inklusive
Geplante Fertigstellung: 2026
Neubau mit energieeffizienter Bauweise
Haus mit nur 9 Wohneinheiten – familiäres Wohngefühl
Weitere Informationen
Sie wollen weitere Informationen? Rufen Sie uns an.
0171/3524747
Anbieter der Immobilie
Edwin Martin Kiefer Immobilien
Schönauer Str. 18, 79669 Zell im Wiesental
Online-ID: 2kmad5h
Finde Angebote wie dieses
Hier geht es zu unserem Impressum, den Allgemeinen Geschäftsbedingungen, den Hinweisen zum Datenschutz und nutzungsbasierter Online-Werbung.