
Sparkasse Pforzheim Calw
Herr Lutz Sonnenberg
072 ···
Nr. anzeigenPreise & Kosten
zzgl. Nebenkosten
Kaution
15.174,00
Provision für Mieter
2,38 KM inkl. MwSt.
Warum sehe ich diese Anzeige? – Du siehst diese Anzeige basierend auf Ihrer Navigation auf unserer Website und den Suchkriterien, die du verwendet hast.
Lage
Die Immobilie liegt im Stadtteil Nordstadt und damit sehr nah zum Stadtzentrum von Pforzheim (ca. 1,2 km bzw. 4 Fahrminuten entfernt). In unmittelbarer Nachbarschaft befinden sich Mehrfamilienhäuser sowie Geschäfte des täglichen Bedarfs.
Die Liegenschaft befindet sich an der gut ausgebauten Sachsenstraße, die in...
Die Industriefläche
Kategorie
Lagerhalle
Baujahr
1991
Bezug
nach Absprache
Energie & Heizung
Warum sehe ich diese Anzeige? – Du siehst diese Anzeige basierend auf Ihrer Navigation auf unserer Website und den Suchkriterien, die du verwendet hast.
Wärme
Strom
Energieausweistyp
Verbrauchsausweis
Gebäudetyp
Nicht-Wohngebäude
Baujahr laut Energieausweis
1958
Wesentliche Energieträger
Öl, Gas, Elektroenergie
Gültigkeit
21.06.2024 bis 20.06.2034
Endenergieverbrauch (Wärme)
84,60 kWh/(m²·a) - Warmwasser enthalten
Endenergieverbrauch (Strom)
65,20 kWh/(m²·a) - Warmwasser enthalten
Weitere Energiedaten
Energieträger
Blockheizkraftwerk, Elektro, Gas, Öl
Heizungsart
Zentralheizung
Details
Objektbeschreibung
Kurzbeschreibung
Repräsentative Büro- und Gewerbeflächen in Pforzheim-Nordstadt
Objekt
Das Gebäude wurde zum Ende letzten Jahres von einem neuen Eigentümer übernommen, welcher selbst einzieht und nun die freien Flächen und Parkplätze mittel- und langfristig vermietet.
Der Gebäudebestand präsentiert sich...
Ausstattung
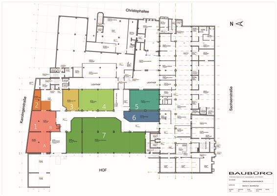
- Teilflächenanmietung möglich (siehe farbige Grundrissflächen)
- teilmöbliert
- hochwertige Materialien
- Groß- und Einzelbüros
- abgeschlossene Teileinheiten
- Kfz-Stell- und Tiefgaragenplätze
- Personen- und Lastenaufzüge in jeder Etage
- Rampenanlieferung möglich
- Kantine mit Großküche in...
Preisinformation
Nettokaltmiete: 5.058,00 EUR
Weitere Informationen
Sonstiges
Bitte beachten Sie, dass bei diesem Angebot zum genannten Mietpreis noch die gesetzliche Mehrwertsteuer hinzukommt.
Stichworte
Gesamtfläche: 1.124,00 m², Bundesland: Baden-Württemberg, 6 Etagen, modernisiert: 2024
Sonstiges: EDV-Verkabelung
Anbieter der Immobilie
Online-ID: 2kn9x5n
Referenznummer: S/8714
Finde Angebote wie dieses
Hier geht es zu unserem Impressum, den Allgemeinen Geschäftsbedingungen, den Hinweisen zum Datenschutz und nutzungsbasierter Online-Werbung.