

BS Immobilien Kontor Büürma GmbH
Herr Dennis Büürma
049 ···
Nr. anzeigenPreise & Kosten
Provision für Käufer
Die Maklerprovision beträgt für den Käufer 3,57% vom Kaufpreis inkl. ges. MwSt..
Lage
26409 Wittmund OT. Carolinensiel (Ruhige, bevorzugte Wohnlage, Strand Harlesiel in fußläufiger Entfernung, gute ÖPNV, Einkaufsmöglichkeiten vor Ort)
Die Wohnung
Wohnungslage
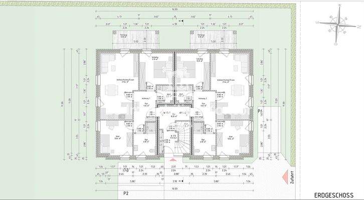
Erdgeschoss
Bezug
Nach Absprache
Wohnanlage
Energie & Heizung
Warum sehe ich diese Anzeige? – Du siehst diese Anzeige basierend auf Ihrer Navigation auf unserer Website und den Suchkriterien, die du verwendet hast.
Energieausweistyp
Bedarfsausweis
Gebäudetyp
Wohngebäude
Baujahr laut Energieausweis
2024
Wesentliche Energieträger
LUFTWP
Gültigkeit
bis 19.12.2033
Effizienzklasse
A+
Endenergiebedarf
17,90 kWh/(m²·a)
Weitere Energiedaten
Heizungsart
Fußbodenheizung, Luft-/Wasser-Wärmepumpe, Zentralheizung
Details
Objektbeschreibung
Leben Sie Ihren Traum an der Küste! Diese Neubau Erdgeschosswohnung wird schlüsselfertig in einer 1a Lage von Carolinensiel/Harlesiel erstellt. Das Mehrfamilienhaus besteht insgesamt aus vier Eigentumswohnungen und wird im Jahr 2024 in konventioneller, ortstypischer Massivbauweise fertigstellt. Die gehobene Ausstattung...
Ausstattung
Besonderheiten/Ausstattungsmerkmale:
-Nähe Hafen Harlesiel und Carolinensiel
-sep. Versorgungsanschlüsse für jede Wohneinheit
-Verwendung hochwertiger Baumaterialien
-Fußbodenheizung
-dezentrale Be-/u. Entlüftungsanlage
-dreifachverglaste Kunststofffenster
-PKW-Stellplatz
-Einbauküche (gegen...
Weitere Informationen
Sonstiges
Grundstück: Gem. Eigentum (PKW-Einstellplatz)
Gebäude: OG: Flur/Diele, offener Wohn-/Essbereich mit Küchenanschlüssen und Zugang zum Balkon, Duschbad mit WC, Abstellraum, 2 x Schlafzimmer
Gesamt: Wohn-/Nutzfläche 71m; Wohnung Nr. 04
Stichworte
vermietbare Fläche: 71,00 m², Anzahl der...
Anbieter der Immobilie
BS Immobilien Kontor Büürma GmbH
Faldernstraße 29, 26725 Emden

Online-ID: 2knbp5d
Referenznummer: E19990314
Finde Angebote wie dieses
Weitere Immobilien
Hier geht es zu unserem Impressum, den Allgemeinen Geschäftsbedingungen, den Hinweisen zum Datenschutz und nutzungsbasierter Online-Werbung.