
Kern-Haus AG, Niederlassung Erfurt
036 ···
Nr. anzeigenPreise & Kosten
Provision für Käufer
provisionsfrei
Lage
Idyllische Baulücke im alten Ortskern von Dachwig. Dachwig hat eine komplette Infrastruktur und einen eigenen Bahnhof, von dem aus Erfurt, Bad-Langensalza und Mühlhausen in nur wenigen Minuten per Bahn erreichbar sind. Ein wunderschönes Freibad mit kleiner Stadionanlage bieten viele Freizeitangebote für die ganze Familie...
Das Haus
Kategorie
Einfamilienhaus
Baujahr
2025
Energie & Heizung
Warum sehe ich diese Anzeige? – Du siehst diese Anzeige basierend auf Ihrer Navigation auf unserer Website und den Suchkriterien, die du verwendet hast.
Energieausweistyp
Bedarfsausweis
Gebäudetyp
Wohngebäude
Effizienzklasse
A
Endenergiebedarf
99,41 kWh/(m²·a)
Weitere Energiedaten
Heizungsart
Fußbodenheizung, Zentralheizung
Details
Objektbeschreibung
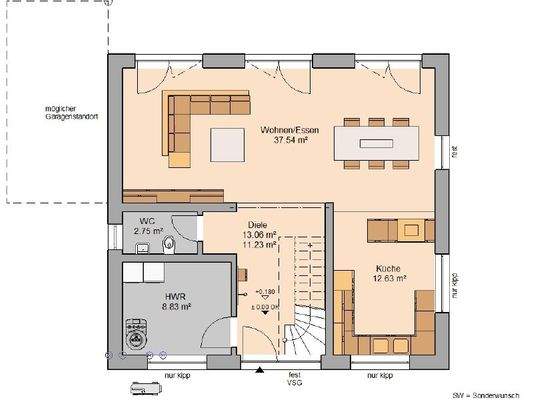
Das Massivhaus Trend ist modern und zeitlos zugleich. Die Architektursprache des Familienhauses ist klassisch, kombiniert mit der modernen Grundrissgestaltung im Innenraum. Das Erdgeschoss folgt dem Trend der Offenheit. Es gleicht mit der Kombination aus Wohnen, Essen und Küche einem Loftcharakter. Im Erdgeschoss befinden...
Ausstattung
4 Zimmer, offene Küche, Diele, Flur, Bad, WC, Ankleide, Hauswirtschaftsraum
Das gezeigte Traumhaus im Überblick:
+ Schlüsselfertiges Massivhaus im Sinne der Ausstattungsbeschreibung "Easy"
+ Inklusive Bodenplatte
Beste Markenausstattung in jedem Kern-Haus:
+ Zimmermannsmäßiger Dachstuhl aus...
Weitere Informationen
Sonstiges
Kern-Haus
Kern-Haus baut individuelle und massive Architektenhäuser zu einem attraktiven Preis-Leistungs-Verhältnis - und das bereits mit einer Erfahrung seit 1980.
Maximale Sicherheit bei Kern-Haus:
+ 10 Jahre Gewährleistung auf die wesentlichen Bauleistungen
+ Bis zu 24 Monate...
Anbieter der Immobilie
Online-ID: 2kncb56
Referenznummer: KEF 73005
Finde Angebote wie dieses
Hier geht es zu unserem Impressum, den Allgemeinen Geschäftsbedingungen, den Hinweisen zum Datenschutz und nutzungsbasierter Online-Werbung.