
SG IMMOBILIEN BREMEN
Frau Silke Gotschlich
042 ···
Nr. anzeigenPreise & Kosten
Kaution
3 Monatsbruttomieten
Provision für Mieter
Provisionsfrei für den Mieter zzgl. MwSt.
Warum sehe ich diese Anzeige? – Du siehst diese Anzeige basierend auf Ihrer Navigation auf unserer Website und den Suchkriterien, die du verwendet hast.
Lage
Die von uns offerierten, attraktiven Gewerbeflächen befinden sich im Cecilien-Quartier in der Bremer Überseestadt.
In dem ehemaligen Hafengebiet, in welchem einst noch Handelsschiffe per Muskelkraft entladen wurden und Containerschiffe anlegten, entsteht seit der Jahrtausendwende ein neuer Stadtteil. Auf ca. 300 Hektar...
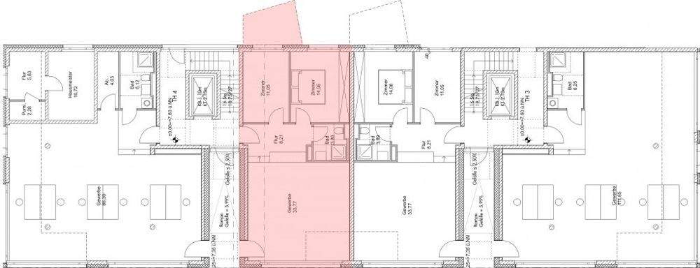
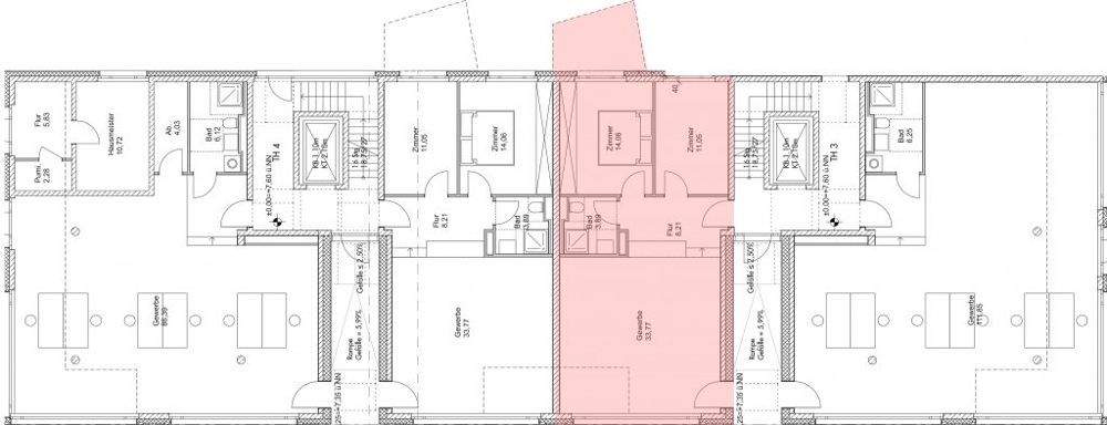
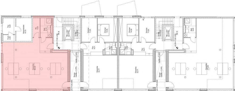
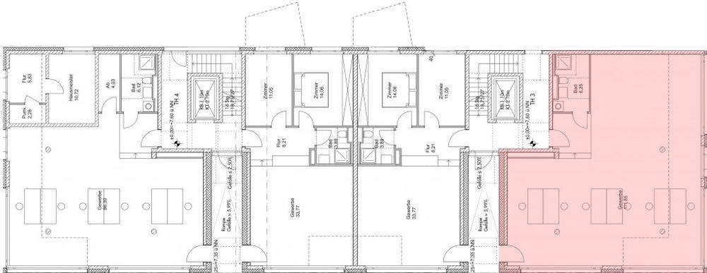
Die Ladenfläche
Kategorie
Verkaufsfläche
Baujahr
2021
Bezug
nach Vereinbarung
Erdgeschoss
Energie & Heizung
Warum sehe ich diese Anzeige? – Du siehst diese Anzeige basierend auf Ihrer Navigation auf unserer Website und den Suchkriterien, die du verwendet hast.
Wärme
Energieausweistyp
Bedarfsausweis
Gebäudetyp
Nicht-Wohngebäude
Baujahr laut Energieausweis
2021
Wesentliche Energieträger
FERN
Gültigkeit
bis 06.12.2031
Endenergiebedarf (Wärme)
84,90 kWh/(m²·a)
Details
Objektbeschreibung
!!! PROVISIONSFREI FÜR DEN MIETER !!!
Gewerbeflächen im Cecilien-Quartier in der Bremer Überseestadt!
Direkt am Kommodore-Johnsen-Boulevard, befinden sich im Erdgeschoss vier vielseitig nutzbare Gewerbeflächen. Die Räumlichkeiten eignen sich nicht nur für den Einzelhandel sondern sie bieten auch die Möglichkeit hier...
Ausstattung
Einige Ausstattungsmerkmale im Überblick:
- Große Schaufensterfront
- Aussenliegender Sonnenschutz
- Pkw-Stellplätze in der Tiefgarage (Miete)
- Flexible Flächengestaltung
Preisinformation
Nettokaltmiete: 1.222,50 EUR
Weitere Informationen
Sonstiges
- Die hier angegebenen Miet- und Nebenkostenpreise beziehen sich auf die kleinen Gewerbeflächen (Nutzeinheit 2 und Nutzeinheit 3) mit einer Nutzfläche von ca. 72,5m² zuzüglich einer Terrasse von ca. 7m².
- Bei Bezug werden seitens des Eigentümers ein angemessener Baukostenzuschuss sowie mietfreie Zeiten...
Anbieter der Immobilie
SG IMMOBILIEN BREMEN
Zwinglistr. 109, 28217 Bremen

Online-ID: 2kne95p
Referenznummer: SG - C/PB05
Finde Angebote wie dieses
Hier geht es zu unserem Impressum, den Allgemeinen Geschäftsbedingungen, den Hinweisen zum Datenschutz und nutzungsbasierter Online-Werbung.