
S & T Massivhaus GmbH
Herrn Dirk Schüle
051 ···
Nr. anzeigenPreise & Kosten
Provision für Käufer
provisionsfrei
Lage
Im östlichen Teil der Region Hannover, zwischen Paradies und Himmelreich, so die Flurbezeichnungen, liegt das Dorf Steinwedel, Ortsteil der Stadt Lehrte. An der Dorfstraße gelegen, in Nachbarschaft zu St.-Petri-Kirche, Friedhof und Gemeindehaus, orientieren sich die Wohnungen mit ihren Terrassen, Balkonen oder Loggien nach...
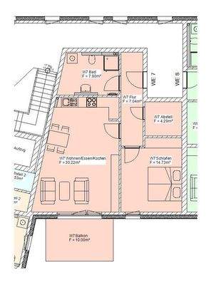
Die Wohnung
Wohnungslage
1. Geschoss
Bezug
12.2026
Wohnanlage
Energie & Heizung
Warum sehe ich diese Anzeige? – Du siehst diese Anzeige basierend auf Ihrer Navigation auf unserer Website und den Suchkriterien, die du verwendet hast.
Weitere Energiedaten
Haustyp
KfW 55
Heizungsart
Fußbodenheizung, Luft-/Wasser-Wärmepumpe
Details
Objektbeschreibung
Die Wohnungen überzeugen durch eine gehobene Ausstattung mit hochwertiger Materialauswahl und durchdachte Raumaufteilung. Die Grundrisse sind mit einem offenen Wohn-/ Ess und Kochbereich modern gestaltet. Die Terrassen haben eine attraktive Südwestlage, für die Erdgeschosswohnungen ist ein Gartenanteil vorgesehen...
Weitere Informationen
Wohnen in Lehrte-Steinwedel
Bei der Bebauungsplanung mit Mehrfamilienhäusern wurde Wert auf den Erhalt des dörflichen Charakters gelegt. In einem modernen Landhausstil fügen sich diese Gebäudekörper harmonisch in den idyllischen Ortskern. Die gegliederten Fassaden zeigen mit Klinker- und Putzflächen, vorgestellten Balkonen...
Anbieter der Immobilie

S & T Massivhaus GmbH
Friederikenstr. 63, 31303 Burgdorf
Online-ID: 2knt25u
Finde Angebote wie dieses
Hier geht es zu unserem Impressum, den Allgemeinen Geschäftsbedingungen, den Hinweisen zum Datenschutz und nutzungsbasierter Online-Werbung.