

CHI Cornelia Hopf Immobilien e.K.
Frau Sandra Spittel
036 ···
Nr. anzeigenPreise & Kosten
Provision für Käufer
7,14 % inkl. 19 % MwSt. Käuferprovision vom Kaufpreis inkl. MwSt.
Lage
Die Liegenschaft befindet sich in Ilversgehofen, im Nordteil des bebauten Erfurter Stadtgebiets. Angrenzende Stadtteile sind die Andreasvorstadt im Westen, die Johannesvorstadt im Süden, der Johannesplatz im Südosten, Hohenwinden im Osten und Norden und das Rieth im Nordwesten. Ilversgehofen hat sich zu einem attraktiven...
Das Haus
Kategorie
Mehrfamilienhaus
Baujahr
1910
Energie & Heizung
Warum sehe ich diese Anzeige? – Du siehst diese Anzeige basierend auf Ihrer Navigation auf unserer Website und den Suchkriterien, die du verwendet hast.
Energieausweistyp
Verbrauchsausweis
Gebäudetyp
Wohngebäude
Baujahr laut Energieausweis
2011
Wesentliche Energieträger
GAS
Gültigkeit
bis 20.04.2028
Effizienzklasse
D
Endenergieverbrauch
102,00 kWh/(m²·a)
Weitere Energiedaten
Heizungsart
Etagenheizung
Details
Objektbeschreibung
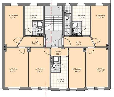
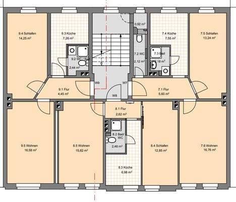
Das gepflegte Mehrfamilienhaus wurde ca. 1910 erbaut und ca. Mitte der 90'er Jahre saniert. Insgesamt befinden sich zehn Einheiten im Haus, welche sich auf ca. 598 m² Wohnfläche verteilen.
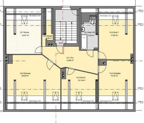
Die Wohnung im Erdgeschoss wurde 2020 grundhaft saniert, die Wohnung im Dachgeschoss wurde 2016 saniert.
Im Innenhof...
Preisinformation
7 Stellplätze
Ist-Mieteinnahmen pro Jahr: 61.367,76 EUR
Weitere Informationen
Sonstiges
Bei Vertragsabschluss zahlt der Käufer der Immobilie die im Exposé angegebene Courtage vom Verkaufspreis, inkl. der gesetzlichen Mehrwertsteuer. Die Angaben beruhen auf Angaben des Verkäufers. Für Richtigkeit und Vollständigkeit übernimmt CHI Cornelia Hopf Immobilien e.K. keine Gewähr. Die Courtage auf den...
Anbieter der Immobilie
CHI Cornelia Hopf Immobilien e.K.
Michaelisstraße 7 , 99084 Erfurt

Online-ID: 2knxy5y
Referenznummer: 2278
Finde Angebote wie dieses
Hier geht es zu unserem Impressum, den Allgemeinen Geschäftsbedingungen, den Hinweisen zum Datenschutz und nutzungsbasierter Online-Werbung.