Solide Rendite: Voll vermietetes Mehrfamilienhaus mit Gastroeinheit
Dieses gepflegte Mehrfamilienhaus mit Gewerbeeinheit bietet eine vielseitige und nachhaltige Nutzung auf mehreren Ebenen.
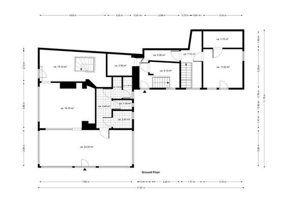
Im Erdgeschoss befindet sich eine großzügige Gastronomieeinheit mit einem einladenden Restaurantbereich sowie einer großen Außenterrasse, die exklusiv vom Restaurant genutzt wird. Zur Gewerbefläche gehören zudem ein Kühlraum sowie Abstellflächen im Keller, die ausreichend Stauraum für den Gastronomiebetrieb bieten.
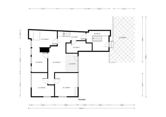
Über das zentrale Treppenhaus gelangt man in das erste Obergeschoss. Hier befinden sich - neben einem kleinen Laubengang - zwei kompakte 1 - Zimmerwohnungen, jeweils bestehend aus einem Wohn-/Schlafraum und mit Badezimmer. Ebenfalls auf dieser Etage befindet sich eine 4 - Zimmerwohnung mit drei Schlafzimmern, einem großen Wohnzimmer, einer geräumigen Einbauküche Küche sowie einem Badezimmer mit eine Dusche.
Alle drei Einheiten im ersten Obergeschoss - die beiden Einzimmerwohnungen sowie die Vierzimmerwohnung - sind aktuell vermietet.
Das zweite Obergeschoss bietet ein modernes Gemeinschaftswohnkonzept mit vier separaten Zimmern, die sich eine große Gemeinschaftsküche, ein Badezimmer sowie einen Balkon teilen. Der Balkon ist zur Terrasse der Gewerbeeinheit ausgerichtet und schafft eine angenehme Verbindung zwischen Wohnen und Außenbereich. Alle Zimmer sind vermietet und werden gemeinschaftlich genutzt.
Zudem befindet sich im Dachspitz eine weitere 1 - Zimmerwohnung, ausgestattet mit einem eigenen Badezimmer - ebenfalls vermietet.
Das Gebäude wurde laufend instand gehalten und war durchgehend vermietet. Es stellt somit eine attraktive Kapitalanlage mit stabilen Mieteinnahmen dar und bietet Potenzial für verschiedene Nutzungskonzepte - ob klassisch, gemeinschaftlich oder gewerblich.
Merkmale
283 m² Grundstück
Kelleranteil
5 Stellplätze: 5 Außen-Stellplätze
Gäste-WC
- Mehrfamilienhaus mit Gewerbeeinheit - Restaurant im Erdgeschoss mit großer Terrasse, Kühlraum & Lagerflächen - 2x 1 - Zimmerwohnung im 1. Obergeschoss - 4 - Zimmerwohnung im 1. Obergeschoss - Gemeinschaftswohnen mit 4 Zimmern im 2. Obergeschoss - 1 - Zimmerwohnung im Dachspitz mit Bad - alle Einheiten sind vermietet und laufend instand gehalten - sehr gute Kapitalanlage mit stabilem Mietertrag
Grundrisse
Grundrisse
1 / 4
Realisiere Dein Projekt
Bausubstanz und Energie
Energieausweis
C
Baujahr1890
HeizungsartZentralheizung
Preisdetails
Kaufpreis
899000 €899.000 €
4.694,27 €/m²
Provision für Käufer
4,76% inkl. 19% MwSt. inkl. MwSt.
Weitere Preisinformationen
5 Stellplätze
Geschätzte Gesamtkosten
994.024 €1
Kaufpreis
899.000 €
Kaufnebenkosten
95.024 €
2
Notarkosten (1,5%)
13.485 €
Grunderwerbsteuer (5%)
44.950 €
Provision für Käufer (3,57%)
32.094 €
Grundbucheintrag (0,5%)
4.495 €
1Der angezeigte Wert ist eine automatisch berechnete Schätzung von immowelt.
2Bei den Angaben handelt es sich um ortsübliche Werte. Individuelle Kosten können abweichen.
Lage
Bühl, Tübingen-Bühl (72072)
Der Anbieter hat die genaue Adresse nicht freigegeben
Der Stadtteil Bühl liegt idyllisch im Neckartal, gegenüber der bekannten Wurmlinger Kapelle. Die Ortschaft befindet sich rund sechs Kilometer südwestlich von Tübingen sowie etwa vier Kilometer östlich von Rottenburg am Neckar. Mit einer Höhe von 336 Metern über dem Meeresspiegel und rund 2.250 Einwohnern bewahrt Bühl seinen charmanten, dörflichen Charakter - und das trotz der Nähe zu zwei Städten.
Dank der Eingliederung als Stadtteil von Tübingen ist Bühl hervorragend in den städtischen Nahverkehr eingebunden. Zusätzlich besteht eine sehr gute Busverbindung nach Rottenburg, was die Mobilität ohne eigenes Fahrzeug erleichtert. Für Autofahrer ist die Anschlussstelle Rottenburg an die A?81 (Stuttgart-Singen) in nur etwa zwölf Kilometern erreichbar und ermöglicht eine schnelle Anbindung an das überregionale Straßennetz.
Die Umgebung zeichnet sich durch ihre naturnahe Lage, das grüne Umfeld und die unmittelbare Nähe zu beliebten Wander- und Aussichtspunkten aus - allen voran der Blick von der Wurmlinger Kapelle über das Neckartal. Gleichzeitig profitiert Bühl von der Infrastruktur und Lebensqualität der Universitätsstadt Tübingen, was den Standort besonders für Berufspendler, Familien und Naturliebhaber attraktiv macht.
Weitere Informationen
Sonstiges
Haben wir Ihr Interesse geweckt oder haben Sie weitere Fragen? Überzeugen Sie sich vor Ort bei einer individuellen Besichtigung.
Gerne stehen wir Ihnen persönlich zur Verfügung: Mobil: 0151 55668461 E-Mail: jonas.herrmann@rwm-immobilien.de
Weitere Angebote erwarten Sie auf unserer Homepage: www.rwm-immobilien.de
Alle im Exposé enthaltenen Angaben beruhen auf Aussagen des/der Eigentümers/Eigentümerin. Unsere Angebote sind freibleibend und in diesem Falle nur für Sie bestimmt. Eine Weitergabe an Dritte bedarf unserer Zustimmung.
Stichworte
Nutzfläche: 117,77 m², Anzahl der Schlafzimmer: 10, Anzahl der Badezimmer: 5, Bundesland: Baden-Württemberg, 4 Etagen, modernisiert