
Anton Schmittlein Construction GmbH
Frau Lucija Brkan
+49 ···
Nr. anzeigenPreise & Kosten
Provision für Käufer
provisionsfrei
Abschreibung/Anlage
Denkmalschutz-Afa
Lage
Die Geschichte der Insel Eiswerder reicht weit zurück: Bereits im 19. Jahrhundert wurde sie zu einem bedeutenden preußischen Militärstandort. Ab 1829 verlegte das Militär große Teile seines Feuerwerkslabors hierher. Das "Königliche Feuerwerks-Laboratorium" wurde 1831 offiziell gegründet. Auch nach dem Zweiten Weltkrieg...
Die Wohnung
Kategorie
Loft
Wohnungslage
Erdgeschoss
Energie & Heizung
Warum sehe ich diese Anzeige? – Du siehst diese Anzeige basierend auf Ihrer Navigation auf unserer Website und den Suchkriterien, die du verwendet hast.
Energieausweis: für diesen Gebäudetyp nicht notwendig
Weitere Energiedaten
Energieträger
Gas
Heizungsart
Zentralheizung
Details
Objektbeschreibung
Die zum Kauf angebotene Wohnung ist Bestandteil eines liebevoll restaurierten historischen Gebäudekomplexes auf Eiswerder - einer Insel inmitten der Havel und umgeben von Wasser und Wald. Dies ist ein einzigartiger Ort im äußersten Westen Berlins, der Historie, Natur und urbanes Leben auf besondere Weise vereint.
Die...
Ausstattung
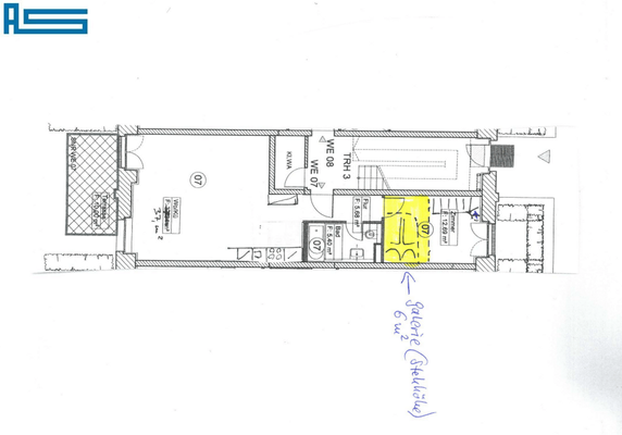
Diese charmante 2-Zimmer-Wohnung befindet sich im Erdgeschoss eines aufwendig sanierten, denkmalgeschützten Altbaus; sie vereint historischen Charme mit modernem Wohnkomfort bei Deckenhöhen von ca. 3,40 m und bietet dank ihrer Galerieebene und den beiden Terrassen auch noch das gewisse Extra.
Auf ca. 65 m² Wohnfläche...
Weitere Informationen
Sonstiges
Sämtliche im Exposé genannten, objekt- und wohnungsspezifischen Angaben basieren auf den uns vom Eigentümer bzw. der Verwaltung übermittelten Informationen. Eine Haftung für deren Richtigkeit und Vollständigkeit kann nicht übernommen werden.
Stichworte
Anzahl der Schlafzimmer: 1, Anzahl der Badezimmer...
Anbieter der Immobilie
Online-ID: 2kp7v5z
Referenznummer: EW17E-SE 7
Finde Angebote wie dieses
Hier geht es zu unserem Impressum, den Allgemeinen Geschäftsbedingungen, den Hinweisen zum Datenschutz und nutzungsbasierter Online-Werbung.