
VON POLL REAL ESTATE Oberer Zürichsee | Zürichsee Goldküste-KWW Immobilien- und Projektberatung GmbH
Frau Kathrin Wolter-Worschech
004 ···
Nr. anzeigenPreise & Kosten
zzgl. Nebenkosten
Warum sehe ich diese Anzeige? – Du siehst diese Anzeige basierend auf Ihrer Navigation auf unserer Website und den Suchkriterien, die du verwendet hast.
Lage
Das Objekt befindet sich im gewerblich-industriellen Entwicklungsgebiet Kobiboden/Steig westlich der Schnabelsbergstrasse - strategisch im Herzen neuer Gewerbe- und Industriezone gelegen.
Das Areal liegt direkt an der zonierten Zufahrtsstrasse (Kobibodenstrasse) mit direkter Erschliessung durch die neue Steigstrasse...
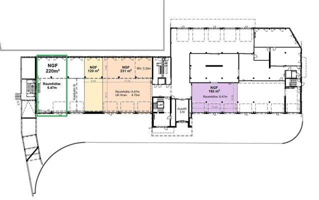
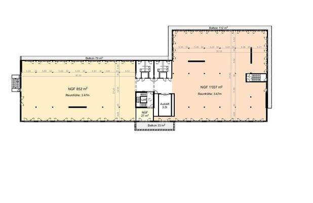
Die Industriefläche
Kategorie
Produktionshalle
Baujahr
2024
Details
Objektbeschreibung
Mietpreise: CHF 185.- bis 195.- pro m² p.a. zzgl. MWST und Nebenkosten (ca. 10%)
An bester Lage in Einsiedeln steht ab sofort eine moderne Gewerbeliegenschaft im Gebiet Kobiboden zur Verfügung. Der Neubau wurde 2024 fertiggestellt und bietet im Rohbauzustand flexible Flächen für unterschiedlichste Nutzungen - ob...
Ausstattung
Die Liegenschaft überzeugt durch eine hochwertige Grundinfrastruktur:
Heizung: Erdwärme mit Deckenheizung (TABS)
Stromversorgung: Solarstrom & Netzanschluss
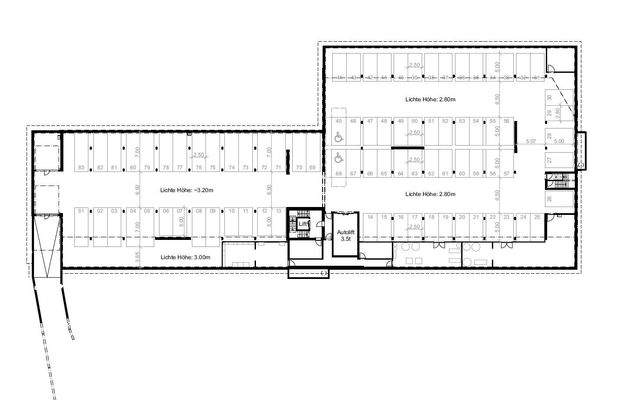
Liftanlagen: Personenlift & grosser Warenlift (3.5?t, Platz für 14 Paletten)
Internet & Telefon: Erschlossen inkl...
Weitere Informationen
Sonstiges
Bezug der Flächen ab sofort möglich
Tragstruktur & Ausbau: Einfache statische Grundstruktur mit hoher Anpassungsfähigkeit
Mieterausbau: In Abstimmung mit der Eigentümerschaft möglich; Ausbaukosten grösstenteils durch Mieter zu tragen
Erschliessung & Technik: Alle Medien (Strom, Wasser...
Anbieter der Immobilie
VON POLL REAL ESTATE Oberer Zürichsee | Zürichsee Goldküste-KWW Immobilien- und Projektberatung GmbH
Seestrasse 90, 8806 Bäch
Online-ID: 2kp9e5s
Referenznummer: CH 22 246 679
Finde Angebote wie dieses
Hier geht es zu unserem Impressum, den Allgemeinen Geschäftsbedingungen, den Hinweisen zum Datenschutz und nutzungsbasierter Online-Werbung.