

ImmoNOW Schoenwälder
Herr Sjard Schoenwälder
+49 ···
Nr. anzeigenDieses Angebot ist Teil des Neubauprojekts
Exklusiver und energieeffizienter Neubau in bester Lage von Niederschönhausen! Von Charmanter Wohnung mit Garten bis zum exklusiven Penthouse mit 180 Grad Panoramablick!
Preise & Kosten
Provision für Käufer
provisionsfrei
Lage
Das Bauprojekt in der Grabbeallee 68 befindet sich in begehrten Lage im Berliner Stadtteil Niederschönhausen. Diese Gegend zeichnet sich durch ihre angenehme Mischung aus grüner Umgebung, guter Infrastruktur und urbanem Komfort aus.
Verkehrsanbindung: Die Anbindung an den öffentlichen Nahverkehr ist ausgezeichnet. Die...
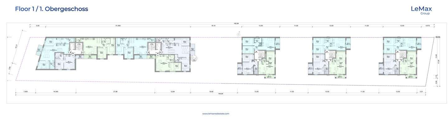
Die Wohnung
Wohnungslage
2. Geschoss (Erdgeschoss)
Bezug
Voraussichtlich: Q1 / 2027
Das Neubauprojekt
Energie & Heizung
Warum sehe ich diese Anzeige? – Du siehst diese Anzeige basierend auf Ihrer Navigation auf unserer Website und den Suchkriterien, die du verwendet hast.
Weitere Energiedaten
Energieträger
Elektro
Details
Objektbeschreibung
Willkommen in dieser modernen und komfortablen 2-Zimmer-Wohnung mit Garten, die durch ihre durchdachte Raumaufteilung und hochwertige Ausstattung besticht. Die Wohnung verfügt über eine offene Wohnküche, die zum geselligen Beisammensein einlädt und viel Platz für Familie und Freunde bietet.
Der großzügige Wohnbereich...
Ausstattung
. Großzügiger Wohn-/Koch- und Essbereich mit ca. 21 m²
. Schlafzimmer mit ca. 11m²
. Stilvolles Bad mit ca. 4 m²
. Terasse mit ca. 3,3 m²
. Garten mit ca. 18 m²
. Hochwertige Echtholzböden mit Fußbodenheizung
. Lichte Raumhöhen
. Videosprechanlage
. Fahrradstellplatz
. Außenliegender...
Weitere Informationen
Energiepass
Energieausweis wird bei Besichtigung vorgelegt.
Stichworte
Anzahl der Schlafzimmer: 1, Anzahl der Badezimmer: 1, Anzahl Balkone: 1, Balkon-Terrassen-Fläche: 3,30 m², Gartenfläche: 18,37 m², Bundesland: Berlin, 2 Etagen
Anbieter der Immobilie
ImmoNOW Schoenwälder
Kurfürstendamm 194, 10707 Berlin

Online-ID: 2kpdl5x
Referenznummer: WE-Nr. 4.0.1 // 49
Finde Angebote wie dieses
Hier geht es zu unserem Impressum, den Allgemeinen Geschäftsbedingungen, den Hinweisen zum Datenschutz und nutzungsbasierter Online-Werbung.