
RICHERT & OERTEL IMMOBILIEN GMBH
Frau Jenny Völkel
035 ···
Nr. anzeigenPreise & Kosten
Provision für Mieter
2,38 NKM inkl. MwSt.
Bei Mietvertragsabschluss entsteht unsererseits gegenüber dem Mieter ein Honoraranspruch in Höhe von 2,38 Nettokaltmieten. Das Honorar versteht sich inkl. Weitere Informationen siehe Provisionshinweis.
Warum sehe ich diese Anzeige? – Du siehst diese Anzeige basierend auf Ihrer Navigation auf unserer Website und den Suchkriterien, die du verwendet hast.
Lage
Das Objekt befindet sich im Südosten der sächsischen Landeshauptstadt, im Gewerbegebiet Sporbitz. Das Gewerbegebiet ist Teil eines modernen, interkommunalen Areals, das sich durch großzügige Flächen, flexible Nutzungsmöglichkeiten und eine sehr gute technische Erschließung auszeichnet. Vor Ort stehen verschiedene Hallen- und...
Die Industriefläche
Baujahr
1991
Bezug
ab sofort
Details
Objektbeschreibung
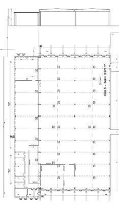
Diese großzügige Kalt-Lagerhalle bietet ideale Voraussetzungen für Logistikunternehmen, Speditionen und gewerbliche Nutzer, die Wert auf effiziente Warenumschlagsprozesse legen.
Es stehen insgesamt drei Lagerhallen mit einer Gesamtnutzfläche von ca. 10.125m² auf dem Grundstück zur Vermietung. Je nach Bedarf können...
Ausstattung
- Kalthalle
- mehrere Rampen für schnellen Warenumschlag und effiziente Be- und Entladung
- umlaufende Freifläche, ideal für Stellplätze, Rangier- oder Abstellflächen
- solide Industriehalle aus ca. 1991, gepflegter Allgemeinzustand
- großzügige Zufahrtsmöglichkeiten für Lkw und Lieferverkehr
Weitere Informationen
Provisionshinweis
2,38 NKM inkl. MwSt.
Bei Mietvertragsabschluss entsteht unsererseits gegenüber dem Mieter ein Honoraranspruch in Höhe von 2,38 Nettokaltmieten. Das Honorar versteht sich inkl. der gesetzlichen Mehrwertsteuer. Das Honorar ist verdient und fällig bei Mietvertragsabschluss.
Sonstiges
Der...
Anbieter der Immobilie
RICHERT & OERTEL IMMOBILIEN GMBH
Tiergartenstraße 46, 01219 Dresden
Online-ID: 2kpq35q
Referenznummer: R_O 23318
Finde Angebote wie dieses
Hier geht es zu unserem Impressum, den Allgemeinen Geschäftsbedingungen, den Hinweisen zum Datenschutz und nutzungsbasierter Online-Werbung.