
Antaris Immobilien GmbH
Frau Yvonne Lehmann
+49 ···
Nr. anzeigenPreise & Kosten
Provision für Mieter
1,19 Monatsmieten inkl. MwSt. vom Mieter
Warum sehe ich diese Anzeige? – Du siehst diese Anzeige basierend auf Ihrer Navigation auf unserer Website und den Suchkriterien, die du verwendet hast.
Lage
Die zur Vermietung stehende Büroeinheit befindet sich in einer gefragten Wohn- und Geschäftslage im Erfurter Süden. Das Einzugsgebiet umfasst ca. 28.000 Einwohner und bietet somit ein lebendiges Umfeld. Der Standort ist optimal über die beiden Hauptausfallstraßen, Clara-Zetkin-Straße und Arnstädter Straße, erreichbar. Die...
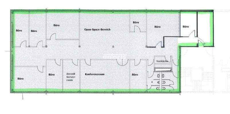
Büro-/Praxisfläche
Kategorie
Bürofläche
Baujahr
2000
Bezug
01.01.2026
Energie & Heizung
Warum sehe ich diese Anzeige? – Du siehst diese Anzeige basierend auf Ihrer Navigation auf unserer Website und den Suchkriterien, die du verwendet hast.
Wärme
Strom
Energieausweistyp
Verbrauchsausweis
Gebäudetyp
Nicht-Wohngebäude
Baujahr laut Energieausweis
2000
Wesentliche Energieträger
Fernwärme
Gültigkeit
09.10.2014 bis 09.10.2024
Endenergieverbrauch (Wärme)
60,66 kWh/(m²·a) - Warmwasser enthalten
Endenergieverbrauch (Strom)
25,97 kWh/(m²·a) - Warmwasser enthalten
Details
Objektbeschreibung
Das moderne Büro- und Geschäftshaus wurde im Jahr 2000 fertiggestellt. Hier stehen Büroflächen mit gehobenem Standard zur Vermietung. Die Einheiten sind über das attraktive Treppenhaus oder den Personenaufzug barrierefrei erreichbar. Ausreichend Stellplätze befinden sich in der Tiefgarage und auf dem großzügig angelegten...
Weitere Informationen
Sonstiges
Provision
Der Maklervertrag mit der antaris Immobilien GmbH kommt entweder durch eine schriftliche Vereinbarung oder durch die Inanspruchnahme unserer Maklertätigkeit auf Basis der Anforderung des Objekt-Exposés und der beinhalteten Bestimmungen zustande (siehe auch AGB). Für den Nachweis und/oder die...
Anbieter der Immobilie
Online-ID: 2kpuw5z
Referenznummer: P251046/G1/Eh2
Finde Angebote wie dieses
Hier geht es zu unserem Impressum, den Allgemeinen Geschäftsbedingungen, den Hinweisen zum Datenschutz und nutzungsbasierter Online-Werbung.