
Immobilien Kiefer
Frau Selina Kiefer
+49 ···
Nr. anzeigenPreise & Kosten
Provision für Käufer
provisionsfrei
Lage
Freudenburg ist eine Gemeinde im Landkreis Trier-Saarburg. Eine gute Infrastruktur, ein schmucker Ortskern mit historischen Gebäuden und die Nähe zu einem einzigartigen Naturschutzgebiet bescheren Freudenburg wachsende Einwohnerzahlen. Die Infrastruktur in Freudenburg umfasst öffentliche Einrichtungen, Sportstätten...
Das Haus
Kategorie
Doppelhaushälfte
Baujahr
2025
Energie & Heizung
Warum sehe ich diese Anzeige? – Du siehst diese Anzeige basierend auf Ihrer Navigation auf unserer Website und den Suchkriterien, die du verwendet hast.
Weitere Energiedaten
Energieträger
Elektro
Heizungsart
Etagenheizung
Details
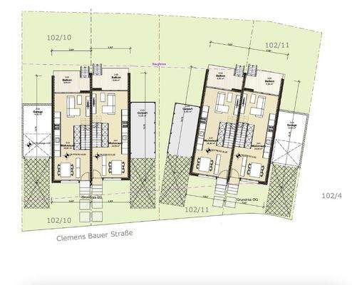
Objektbeschreibung
Willkommen in Ihrem neuen Traumhaus! Diese einzigartige Doppelhaushälfte bietet Ihnen auf einem 148 qm großen Grundstück eine Wohnfläche von 87 qm und überzeugt durch eine durchdachte Bauweise und nachhaltige Materialien.
Die Aufteilung gestaltet sich wie folgt:
Das Erdgeschoss bietet einen großzügigen...
Ausstattung
PVC-Fenster mit 3-fach Verglasung
Haustüre weiß mit erhöhter Sicherheitsstufe
Treppe als Holzwangentreppe
Fußböden aus Parkett
Elelektrische Infrarot Flächenheizung
bodengleiche Dusche
Handtuchwärmer
Terrasse aus Douglasie
Photovoltaikanlage
Gehwegplatten
Parkplatz und Zufahrt aus...
Preisinformation
1 Carportplatz, Kaufpreis: 20.000,00 EUR
1 Garagenstellplatz, Kaufpreis: 28.000,00 EUR
Weitere Informationen
Stichworte
Anzahl der Schlafzimmer: 2, Anzahl der Badezimmer: 1, Anzahl der separaten WCs: 1, Anzahl der Wohn-Schlafzimmer: 1, Gartenfläche: 126,00 m², Kellerfläche: 22,00 m², Bundesland: Rheinland-Pfalz
Anbieter der Immobilie
Immobilien Kiefer
Friedens Aue 15, 54439 Palzem
Online-ID: 2kpvr5z
Referenznummer: 219692
Finde Angebote wie dieses
Hier geht es zu unserem Impressum, den Allgemeinen Geschäftsbedingungen, den Hinweisen zum Datenschutz und nutzungsbasierter Online-Werbung.