
CENTURY 21 Golden time Immobilien
Frau Alesja Nasarov
+49 ···
Nr. anzeigenPreise & Kosten
Provision für Käufer
3.57% inkl. MwSt.
Die Käuferprovision beträgt 3,57 % des Kaufpreises inkl. 19% MwSt.
Lage
Die Immobilie liegt inmitten unberührter Natur, umgeben von den malerischen Alpen. Inzell bietet eine perfekte Mischung aus Ruhe, Erholung und einer guten Anbindung an touristisch starke Regionen wie Ruhpolding, Berchtesgaden und Salzburg.
Das Haus
Kategorie
Mehrfamilienhaus
Baujahr
1969
Bezug
sofort
Energie & Heizung
Warum sehe ich diese Anzeige? – Du siehst diese Anzeige basierend auf Ihrer Navigation auf unserer Website und den Suchkriterien, die du verwendet hast.
Energieausweistyp
Verbrauchsausweis
Gebäudetyp
Wohngebäude
Baujahr laut Energieausweis
1969
Wesentliche Energieträger
PELLET
Effizienzklasse
B
Endenergieverbrauch
58,06 kWh/(m²·a)
Weitere Energiedaten
Energieträger
Pellets
Heizungsart
Zentralheizung
Details
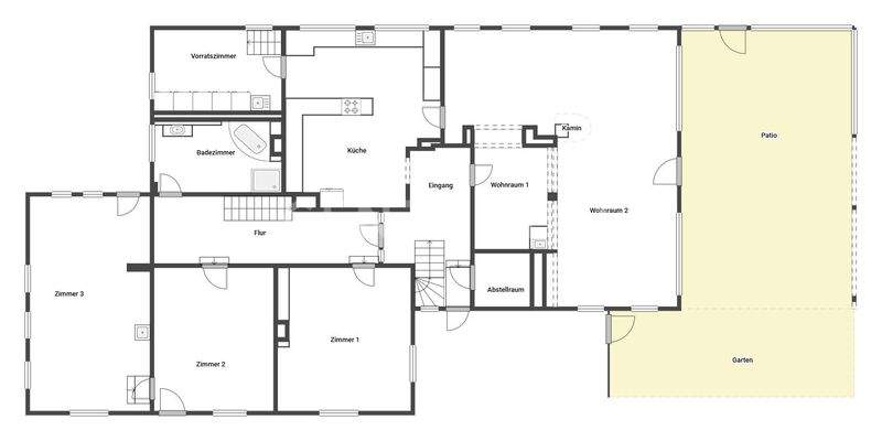
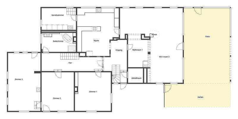
Objektbeschreibung
Dieses außergewöhnliche Zweifamilienhaus mit einer beeindruckenden Wohnfläche von ca. 526 m² befindet sich auf einem großzügigen ca. 3.800 m² großen Grundstück in traumhafter Lage - eingebettet in die idyllische Natur von Inzell.
Das Gebäude wurde ursprünglich im Jahr 1969 als Gasthaus erbaut und in den Jahren 2016 bis...
Ausstattung
*Grundstück Haus: 2.000 m²
*Grundstück Parkplatz: 1.800 m²
*Wohnfläche: ca. 526 m²
*Baujahr: 1969 , Sanierung: 2016-2020
*Dachstuhl erneuert 2013
*Fußböden: hochwertige Holzböden
*Küche: hochwertige 30 m² große Wohnküche mit beheizbarer Granit-Arbeitsplatte & zusätzlichem...
Preisinformation
1 Garagenstellplatz
Weitere Informationen
Sonstiges
Eine neuwertige Destillerie, die optional übernommen werden kann, bietet zusätzliche geschäftliche Möglichkeiten - perfekt für Visionäre mit einer Geschäftsidee im Bereich Gastronomie, Direktvermarktung oder Erlebnistourismus.
Stichworte
Garage vorhanden, Anzahl Balkone: 5, Anzahl Terrassen: 1, Anzahl...
Anbieter der Immobilie
Online-ID: 2kpzb5l
Referenznummer: C21_ALNA_42519
Finde Angebote wie dieses
Hier geht es zu unserem Impressum, den Allgemeinen Geschäftsbedingungen, den Hinweisen zum Datenschutz und nutzungsbasierter Online-Werbung.