

FRANK MUND Immobilienberatung
Herr Fabian Schürhaus
021 ···
Nr. anzeigenPreise & Kosten
Kaution
4.158,00
Abschreibung/Anlage
Denkmalschutz-Afa
Warum sehe ich diese Anzeige? – Du siehst diese Anzeige basierend auf Ihrer Navigation auf unserer Website und den Suchkriterien, die du verwendet hast.
Lage
Das Gebäude liegt im Zentrum des südlichen Mönchengladbacher Stadtteils Wickrath. Im Ort finden Sie alle wichtigen Einkaufs-, Sozial- und Infrastruktureinrichtungen des täglichen Bedarfes, wie z. B. Lebensmittel- und Drogeriemärkte, Bank-Filialen, Ärzte und Apotheken.
Wickrath verfügt über eine Grundschule, eine...
Die Wohnung
Wohnungslage
1. Geschoss
Bezug
nach Absprache
Wohnanlage
Energie & Heizung
Warum sehe ich diese Anzeige? – Du siehst diese Anzeige basierend auf Ihrer Navigation auf unserer Website und den Suchkriterien, die du verwendet hast.
Energieausweis: für diesen Gebäudetyp nicht notwendig
Weitere Energiedaten
Energieträger
Gas
Heizungsart
Zentralheizung
Details
Objektbeschreibung
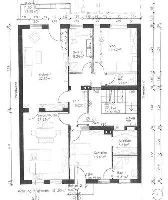
Im Obergeschoss des Hauses befindet sich eine schicke, großzügige 3,5-Zimmerwohnung.
Die Wohnung besteht aus einem geräumigen Wohnzimmer, einer großen Küche mit Platz für einen Esstisch, einem Elternschlafzimmer mit eigenem Bad und Ankleidezimmer, einem Kinderzimmer zur Gartenseite, einem Gäste-WC sowie einem weiteren...
Ausstattung
- Vinylboden in Holzoptik
- 2 moderne Badezimmer mit ebenerdiger Dusche
- hohe Decken
- Balkon
- Kellerraum
- KFZ-Stellplatz direkt neben dem Gebäude
Preisinformation
2 Stellplätze, Miete je: 75,00 EUR
Weitere Informationen
Sonstiges
Keine Energieausweispflicht, da Denkmalschutzobjekt.
Stichworte
Stellplatz vorhanden, Rolladen, Anzahl der Schlafzimmer: 2, Anzahl der Badezimmer: 2, Anzahl der separaten WCs: 1, Anzahl Balkone: 1, modernisiert: 2021, modernisiert
Anbieter der Immobilie
FRANK MUND Immobilienberatung
Poststr. 31, 41189 Mönchengladbach

Online-ID: 2kq7a5s
Referenznummer: 4474
Finde Angebote wie dieses
Hier geht es zu unserem Impressum, den Allgemeinen Geschäftsbedingungen, den Hinweisen zum Datenschutz und nutzungsbasierter Online-Werbung.