

Immopoint Bayern GmbH
Frau Karen Moreno Fröhler
091 ···
Nr. anzeigenPreise & Kosten
Provision für Käufer
provisionsfrei
Lage
Marderweg, Straubing
Das Neubauprojekt befindet sich in einer ruhigen und familienfreundlichen Wohngegend am Marderweg in Straubing. Die Lage überzeugt durch eine ideale Kombination aus naturnahem Wohnen und guter Infrastruktur.
Einkaufsmöglichkeiten für den täglichen Bedarf, Schulen, Kindergärten sowie medizinische...
Das Renditeobjekt
Kategorie
Doppelhaushälfte
Baujahr
2025
Geschosse
2 Geschosse
Energie & Heizung
Warum sehe ich diese Anzeige? – Du siehst diese Anzeige basierend auf Ihrer Navigation auf unserer Website und den Suchkriterien, die du verwendet hast.
Weitere Energiedaten
Haustyp
KfW 55
Details
Objektbeschreibung
Objektbeschreibung
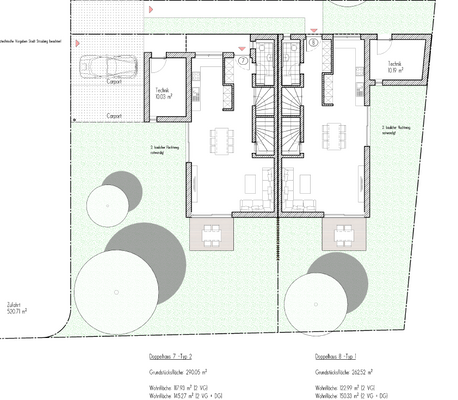
Haus 8:
Neubau-Doppelhaushälften im Marderweg, Straubing (KfW 55)
In begehrter Lage von Straubing entstehen acht moderne Doppelhaushälften (vier Doppelhäuser) im energieeffizienten KfW-55-Standard. Die hochwertige Bauweise und die durchdachte Raumaufteilung schaffen ein Zuhause mit...
Weitere Informationen
Besichtigungstermin
Vereinbaren Sie noch heute Ihren Besichtigungstermin!
Unsere Türen stehen Ihnen offen:
Montag - Donnerstag
09:00 - 12:00 Uhr & 14:00 - 17:00 Uhr
oder nach Vereinbarung.
„So fühlt sich Zuhause an – Immobilien mit Herz und Qualität.“
Anbieter der Immobilie

Online-ID: 2kqkz5r
Finde Angebote wie dieses
Hier geht es zu unserem Impressum, den Allgemeinen Geschäftsbedingungen, den Hinweisen zum Datenschutz und nutzungsbasierter Online-Werbung.