
GARANT Immobilien AG
Büro Calw / Freudenstadt
074 ···
Nr. anzeigenPreise & Kosten
Provision für Käufer
4,76 % (inkl. MwSt.) inkl. MwSt.
Die Maklercourtage für den Käufer beträgt 4 % aus dem Kaufpreis zuzüglich der gesetzlichen MwSt., somit gesamt 4,76 %.
Lage
Die Straße liegt in einem ruhigen Wohnviertel von Böblingen Teilort Dagersheim, das durch gepflegte Nachbarschaft und viel Grün überzeugt. Einkaufsmöglichkeiten, Schulen, Kindergärten sowie Ärzte und Apotheken sind in wenigen Minuten erreichbar. Die Anbindung an den ÖPNV sowie die Autobahn A81 ist hervorragend und ideal für...
Das Haus
Kategorie
Mehrfamilienhaus
Baujahr
2022
Bezug
nach Vereinbarung
Energie & Heizung
Warum sehe ich diese Anzeige? – Du siehst diese Anzeige basierend auf Ihrer Navigation auf unserer Website und den Suchkriterien, die du verwendet hast.
Energieausweistyp
Bedarfsausweis
Gebäudetyp
Wohngebäude
Baujahr laut Energieausweis
2022
Wesentliche Energieträger
Strom
Gültigkeit
seit 26.05.2022
Effizienzklasse
A+
Endenergiebedarf
14,70 kWh/(m²·a)
Weitere Energiedaten
Energieträger
Elektro
Details
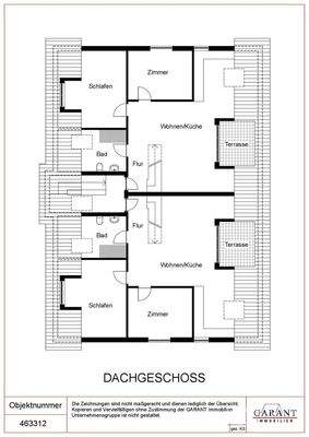
Objektbeschreibung
In ruhiger und dennoch gut angebundener Wohnlage von Böblingen präsentiert sich dieses moderne Mehrfamilienhaus aus dem Jahr 2022 mit insgesamt fünf stilvollen Wohneinheiten. Die Wohnflächen variieren zwischen etwa 63 m² und 113 m² und bieten großzügige 2 bis 4 Zimmer-Grundrisse ideal für Singles, Paare und...
Ausstattung
Wohnungsaufteilung:
* Wohnung Nr. 1: 3 1/2 Zimmer-Wohnung mit rund 88,63 qm
Wohnfläche im Erdgeschoss
* Wohnung Nr. 2: 2 Zimmer-Wohnung mit rund 62,89 qm
Wohnfläche im Erdgeschoss
* Wohnung Nr. 3: 3 1/2 Zimmer-Wohnung mit rund 88,63 qm
Wohnfläche im Erdgeschoss
* Wohnung Nr. 4: 3...
Weitere Informationen
Sonstiges
Energiebedarfsausweis
Energiekennwert: 14,70 kWh/(qm*a)
Energieeffizienz: Klasse A+ (<30)
Heizung: Wärmepumpe mit Strom
Baujahr laut Energieausweis: 2022
Stichworte
Stellplatz vorhanden, Anzahl Balkone: 1, 3 Etagen
Anbieter der Immobilie
Online-ID: 2kqmv5l
Referenznummer: 463.312
Finde Angebote wie dieses
Hier geht es zu unserem Impressum, den Allgemeinen Geschäftsbedingungen, den Hinweisen zum Datenschutz und nutzungsbasierter Online-Werbung.