

BBC Immobilien
Herr Irfan Okumus
017 ···
Nr. anzeigenPreise & Kosten
Verhandlungsbasis
Provision für Käufer
Provision für Käufer 2,38 % des Kaufpreises inkl. MwSt.
Wir haben mit dem Verkäufer einen provisionspflichtigen Maklervertrag in gleicher Höhe geschlossen.
Abschreibung/Anlage
als Kapitalanlage geeignet
Lage
Das Grundstück befindet sich in zentraler und ruhiger Lage innerhalb einer gewachsenen Wohngegend. Die Umgebung ist geprägt von einer harmonischen Mischung aus Wohnbebauung, guter Infrastruktur und kurzen Wegen zu allen wichtigen Einrichtungen des täglichen Bedarfs.
Die Stadt liegt landschaftlich reizvoll am Fuße der...
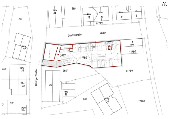
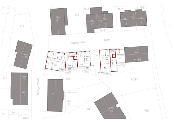
Das Grundstück
Details
Objektbeschreibung
Zum Verkauf steht ein attraktives Projektgrundstück mit einer Gesamtfläche von 716,05m² in ruhiger und dennoch zentraler Lage innerhalb einer gewachsenen Wohngegend. Das Grundstück ist teilerschlossen und wird mit vollständiger, genehmigter Planung zur Errichtung von zwei modernen Mehrfamilienhäusern mit gemeinsamer...
Weitere Informationen
Sonstiges
Wir hoffen, Ihr Interesse an diesem attraktiven Bauprojekt geweckt zu haben.
Gerne senden wir Ihnen auf Anfrage weitere Informationen und Unterlagen zu.
Um allen Beteiligten unnötige Besichtigungstermine zu ersparen und Rücksicht auf die aktuelle Gesundheitsthematik zu nehmen, klären wir möglichst viele...
Anbieter der Immobilie
BBC Immobilien
Schillerstrasse 17, 72202 Nagold

Online-ID: 2kqn35s
Finde Angebote wie dieses
Hier geht es zu unserem Impressum, den Allgemeinen Geschäftsbedingungen, den Hinweisen zum Datenschutz und nutzungsbasierter Online-Werbung.