

Immoraum GmbH
Herr Sven Gruber
+49 ···
Nr. anzeigenPreise & Kosten
Kaution
3 Bruttomonatsmieten
Provision für Mieter
provisionsfrei
Warum sehe ich diese Anzeige? – Du siehst diese Anzeige basierend auf Ihrer Navigation auf unserer Website und den Suchkriterien, die du verwendet hast.
Lage
Mit 600.000 Einwohnern ist Stuttgart die sechstgrößte Stadt Deutschlands und liegt topografisch reizvoll zwischen Wäldern, Reben und dem Neckar eingebettet. Durch viele Täler, Anhöhen und Grünanlagen wird das Stadtbild geprägt. Als Landeshauptstadt ist Stuttgart der zentrale...
Büro-/Praxisfläche
Baujahr
-
Bezug
sofort
Geschoss
Erdgeschoss
Details
Objektbeschreibung
Hier im historischen Areal des Mörikehofs finden sich zwei Gebäude aus dem 19. Jahrhundert. Vermietet werden Flächen im Gebäude der Böblinger Strasse und der Adlerstarsse - in der ehemalige Papierfabrik des Unternehmers Lemppenau.
Ein Umbau der Flächen kann ich Abstimmung mit dem Mieter erfolgen. Der Mietpreis...
Ausstattung
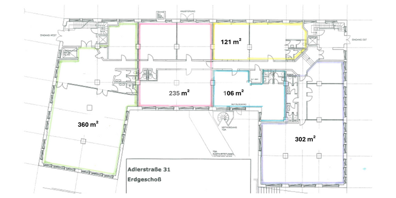
- EG: 121 qm
TG-Stellplätze, Einbauküche, Parkettboden, Bad/WC getrennt, Personenaufzug, Bezug in 1-3 Monaten, Glasfaser
Weitere Informationen
Sonstiges
Noch nicht das Richtige? Wir führen weitere Objekte im Großraum Stuttgart. Sprechen Sie mit unseren Beratern. Gemeinsam finden wir Ihr Wunschobjekt! Wir freuen uns auf Ihre Kontaktaufnahme!
Nach den §§ 16, 16 a EnEV ist der Eigentümer, Verkäufer, Vermieter, Verpächter und Leasinggeber bei der Vermarktung...
Anbieter der Immobilie
Immoraum GmbH
Uhlandstraße 14, 70182 Stuttgart

Online-ID: 2kqrm59
Referenznummer: IRx1277/G2/E4/Eh2
Finde Angebote wie dieses
Hier geht es zu unserem Impressum, den Allgemeinen Geschäftsbedingungen, den Hinweisen zum Datenschutz und nutzungsbasierter Online-Werbung.